Archives:Transformers at Pittsfield, part 2

From ETHW

Continued from Transformers at Pittsfield, part 1

Chapter 9: The High Voltage Laboratory

"The most powerful lightning bolts ever created by man ripped through the air this week as the new High Voltage Engineering Laboratory of the General Electric Company was opened officially."

"Julius H. Hagenguth, engineer in charge of the laboratory, supervised the firing of artificial lightning more than fifty feet through the air in the huge demonstration hall of the laboratory, described as 'the world's largest man-made lightning center'."

('Transformer and Allied Products News', June 24, 1949)

The "demonstration hall" referred to above was the "High Bay" area of the new Building 9, located on Tyler Street Extension, in the Pittsfield G.E. plant. This building still stands today, but is essentially abandoned as a result of the closing of the Pittsfield transformer operation in 1987. The building is distinguished by an aluminum and glass block main entrance facade in the Art Deco style which was still in vogue at the time of its construction in 1948-49.

The "lightning bolts" were discharges from devices known as impulse generators. These giant stacks of capacitors allowed for the production of extremely high surge voltages which could be made to duplicate the surges created in electric power systems by natural lightning. Thus, the effects of these surges on electrical equipment could be studied in a laboratory environment.

During its heyday, the G.E. High Volt Lab was known the world over as a center of lightning research. Its abandonment as a consequence of the closing of the G.E. transformer operation in Pittsfield represents a significant loss to the prestige of the community.

Following the plant closing, the nearly fifty year old, but still perfectly functional, High Bay impulse generators were destroyed because the capacitors which were the basis of their operation contained Pyranol. This insulating fluid had been outlawed in 1977 because it contained suspected carcinogens ("PCB's").

Julius Hagenguth had died in 1969 at the age of 67, just three years after his formal retirement from the High Voltage Laboratory.

The history of the High Voltage Laboratory goes back much farther than the opening of Building 9 in 1949. It began when the need for the investigation of the exact nature of lightning-induced surges arose with the development of high voltage transmission of electric power over long distances. Long transmission lines, as well as the electrical equipment connected to them, are susceptible to high voltage surges from lightning strikes either to the line itself, or nearby.

The equipment connected to the ends of high voltage transmission lines is susceptible to extensive damage as a result of such surges. Since this equipment is most apt to be in the form of a transformer, it was logical for the investigation of lightning surges to be a part of the development of the transformer industry itself.

As early as 1894, William Stanley and his associates experimented with a short transmission line operating at 15,000 volts (15-kv). This was in the southeastern section of the City of Pittsfield, in the vicinity of what is now the intersection of Wendell Avenue and Colt Road. By 1900, commercial transmission lines operating at 40 to 60-kv were in use, and, by 1910, the upper limit of transmission voltages had reached 100-kv.

More basic to the development of such high voltage transmission lines than the effects of lightning surges was the design of insulation capable of standing up to these high normal operating voltages. Transformers were designed just for the purpose of developing such high voltages in a laboratory environment so that insulating structures could be tested before being put into commercial use.

Ultimately, special testing transformers known as "cascade transformers" were developed in order to obtain extremely high power frequency (usually 60-Hertz) voltages. This technique involved the use of two or more transformers connected in "cascade" so as to add their individual voltages together.

Three cascade transformers producing 1.05-MV NOTE: The steel tanks of Transformers No. 2 and No. 3 must be physically and electrically insulated from ground.
Main Entrance of Building 9 in 1996, photo by author
Three cascade transformers in Building 9 courtesy of General Electric Company

Defective high voltage insulation can lead to actual breakdowns called "flashovers" or "arcovers" which cause a short circuit on the transmission line or in the piece of equipment where the breakdown occurs. However, even if this extreme a problem does not occur, less than adequate insulation strength can give rise to a phenomenon known as "corona". This is a partial breakdown of the air in the vicinity of a high voltage conductor. Corona caused by the very high voltage static charges which precede a lightning stroke was called "St. Elmo's Fire" by sailors on old sailing ships. The corona appeared at the tops of the masts and produced a bluish glow in the nighttime. Corona on high voltage power lines can create the same visual effect, and it also causes severe static on AM radios in the vicinity.

If corona discharges are left uncorrected, the insulation over which they occur will be damaged as time progresses. Also, even if insulation damage is not a prime consideration (such as with corona on a bare conductor), the energy expended in the corona discharge represents a loss on a power system. This degrades the over-all efficiency of the system. In any case, it is evident that corona should be avoided by proper design of the insulation involved.

In 1909, the first serious study of the corona phenomenon was undertaken by Giuseppe Faccioli and W.S. Moody of the Pittsfield transformer operation. In 1910, F.W. Peek developed the first mathematical basis for determining the probability of corona occurring in a high voltage system. To this end, Peek used 250-kv transformers designed by A.B. Hendricks, Jr. to conduct experimental tests of corona phenomena. By 1913, a building designated as "3B" in the Pittsfield plant was called "High Tension and High Frequency Test" and was used for the purpose of conducting testing such as this. Building 3B was adjacent to transformer assembly Building 3.

At the same time, the lightning arrester development group in Pittsfield had begun to experiment with lightning-type surges with the aid of a crude form of impulse generator. It was called a "lightning generator" and was capable of producing discharges of up to 200-kv in magnitude.

By 1914, these types of investigations had become sophisticated enough that some means of displaying the waveform of the surge which was being produced became a priority. At this time, Alexander Dufour was experimenting with the placement of photographic film inside an evacuated chamber, and the use of a beam of electrons to "write" an image onto the film. Eventually, the evacuated chamber and electron beam became known as a "cathode ray tube" and, as such, formed the basis for the electronic instrument known as an oscilloscope, which is still very much in use today. Also, for the photographic recording of surges, the film eventually was moved to a camera located outside of the cathode ray tube. This greatly expedited the operating procedure; with the old arrangement, a new vacuum had to be pulled in the chamber every time the film was changed!

When Building 9 was constructed in 1949, the lightning arrester development group was given space on the third floor. They used a Dufour-type "cold-cathode" oscillograph in their work for many years. Tom Carpenter, an engineer who joined this group in 1937 and retired in 1976, was an expert in the operation of this device.

Normally, a constant high voltage (D.C.) would be used to energize the electron beam mechanism of such a device. In this case, however, in order to reduce the degradation of the cathode element, a short duration pulse was supplied for this purpose by a 70-kv impulse generator. The electron beam thus produced was allowed to write a trace on either a fluorescent screen for immediate viewing, or onto a photographic film. An arrangement within the evacuated chamber, operated from the outside, allowed one of six films (or the screen) to be rotated into the path of the beam. Thus, six records could be made without breaking the vacuum. It took about one hour to change films and re-establish the vacuum!

The advantages of this device over the more convenient hot cathode type of oscilloscope included the fact that it was capable of producing photographic records of extremely short duration surges which had very high quality. It would be many years before sealed cathode ray tubes could produce comparable images.

As transmission voltages rose higher and higher, the need for greater magnitudes of voltage for surge testing followed .accordingly. Thus, in 1916, the arrester group's lightning generator was uprated from 200-kv to 750-kv.

The year 1914 marked the establishment of the High Voltage Engineering Laboratory as an entity within the Pittsfield plant. The facility used for this new operation was Building 12A, a section located at the north end of the new Building 12 transformer assembly and testing building then under construction.

In 1921, Faccioli and Peek produced the first one million volt 60-Hertz discharge in this new facility. In addition, a one million volt experimental transmission line was erected from Building 12A running through the plant to the east. The steel lattice towers used to support this line remained in place for many years thereafter.

At this same time, the first 220-kv transmission line for commercial use was put into operation by the Big Creek Power Company in California (later to become a part of the Southern California Edison Company). The transformers used to energize this line were designed in Pittsfield by F.F. Brand and J.J. Frank of the transformer engineering operation.

The cold-cathode oscillograph in use courtesy of General Electric Company
The High Voltage Lab in Building 12A; G.E. Current News, July, 1926
One million volt arc in Building 12A; G.E. Current News, November, 1921

High Current Testing

In 1920, the summer camp of the legendary General Electric scientist and mathematical genius, Charles Proteus Steinmetz, was struck by lightning. His camp was on the Mohawk River near Schenectady, New York, his base of operations. Accordingly, Steinmetz became very interested in the explosive and incendiary effects of natural lightning.

As a result, Steinmetz designed and built a 120-kv lightning generator. The notable feature of this machine, however, was that it could produce discharges of up to 10,000 amperes so as to simulate the destructive effects of natural lightning. This generator used the newly-developed "Kenotron" high vacuum rectifier tube to produce direct current of sufficient voltage to charge the capacitors which formed the circuitry of the generator.

Steinmetz died shortly thereafter, in 1923. However, his work with high surge currents was continued in Pittsfield. In 1934, a high current generator was constructed which was capable of producing discharges of 265,000 amperes at a voltage of 50-kv. It used a group of capacitors totaling about fifty microfarads arranged in a hollow square configuration. The test piece (the object which was to receive this blast of current) was placed in the center of the arrangement.

According to one observer of the time:

"One of the first things to be discovered was the extraordinarily loud report resulting from a high current discharge in the air. From the spark there also emanated a pressure wave which would rock bystanders back upon their heels, and could be felt effectively on the chest thirty feet away. These characteristics, in addition to the aforementioned flying debris - bits of wood, metal, and concrete - made it necessary to house the test piece inside a box made of two-inch wooden planks. This procedure increased our comfort and safety considerably."

The high current generator; General Electric Review, March, 1935
Above generator re-built in Building 9 courtesy of General Electric Company

Further Developments

In 1922, A.B. Hendricks, Jr. first demonstrated a one million volt three-phase arc. He used three testing transformers which stepped 2500 volts up to 578-kv to ground. This gave 1000-kv phase-to-phase.

In later years, the three-phase arc became a feature of the High Voltage Laboratory shows during transformer plant Open House events for families and friends of the transformer employees. In the name of showmanship, a technique was developed whereby the three electrodes for the arc were treated with different chemicals. This caused the three branches of the arc to assume different colors (strontium nitrate made red, sodium chloride made yellow, and thallium nitrate made green).

In 1923, a new two million volt lightning generator was built for use in Building 12A. It was designed by W.L. Lloyd, Jr. At this time, the High Voltage Engineering Lab operation was under the leadership of Royal Meeker. In addition, there were laboratory operations in Building 7 ("Instrument and General Testing Lab"), and in Building 8 ("Electrical Testing and Development Lab").

In 1924, two Dufour oscillographs were purchased-, by the High Voltage Engineering Lab, Also, a one million volt cascade transformer testing set was built for use at the Philadelphia General Electric plant. It was used for the testing of switchgear insulation.

In 1927, a portable one million volt impulse generator was built for field-testing transmission line insulator strings. In 1929, this generator was used for tests on the 115-kv transmission line running from Turner's Falls, Mass, to the Silver Lake Substation adjacent to the Pittsfield plant. In 1931, a new 1.5 million volt portable impulse generator was built to continue this work at higher voltage levels.

Meanwhile, larger and larger impulse generators were being built for use in the High Voltage Engineering Lab itself. In 1928, Peek designed a 3.6 million volt generator. This was followed by a five million volt generator in 1929, and then a ten million volt version in 1932.

Frank W. Peek was named Chief Engineer of the Pittsfield Works in 1931. Very unfortunately, however, he was killed in an automobile accident in 1931. At this time, Karl B. McEachron took over in his place. In 1930, McEachron had developed a material called "Thyrite" which was then patented by G.E. This material was a silicon carbide composition which exhibited the unique property of having a decreasing electrical resistance as the voltage applied to it was increased. Thus, it found great usage in lightning arresters which could, with the aid of Thyrite, limit surge overvoltages on power systems in which they were connected.

The High Voltage Engineering Laboratory was also very much involved in investigations of natural lightning during this time. In 1928, the first oscillographic record ("oscillogram") of natural lightning had been obtained. In 1934, a lightning observatory was built on the roof of Building 42 in the Pittsfield plant,

Also, in 1934, lightning tests were conducted on underground power cables at what was known as the "old Allen Farm" in Pittsfield. This was in the vicinity of the present Allengate Avenue. Such work was aided by the use of an improved form of impulse generator (the "Marx" circuit) which had been invented in 1925.

The one million volt three-phase arc; G.E. Current News, November, 1922
The high current generator; General Electric Review, March, 1935
The two million volt impulse generator. G.E. Current News, July, 1923
A ten million volt discharge in Building 12A G.E. 'Monogram', June, 1938
The lightning observatory on Building 42; Pittsfield G.E. News, August 2, 1935
Three cascade transformers in Building 12A G.E. Current News, November, 1925
"Experimental High Potential Test" (Building 12A, 1915); courtesy of Judy Rupinski, Pittsfield, MA

Building 9

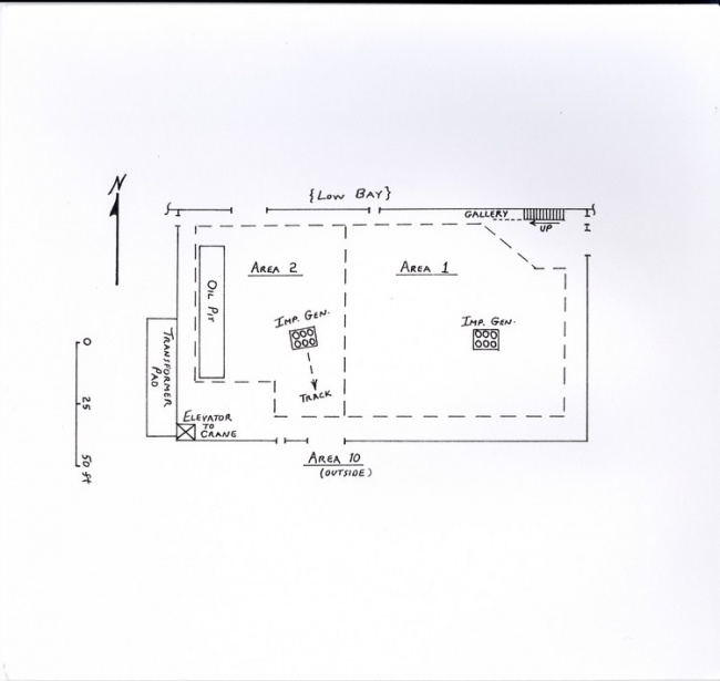
A new High Voltage Laboratory facility, Building 9 on Tyler Street Extension, officially opened in June of 1949. The building still stands and consists of two main structural parts. These were referred to as the "High Bay" and the "Low Bay" when the Lab was in operation. The High Bay contained two major test areas, each equipped with a 5.1 million volt impulse generator. The Low Bay contained smaller test areas, offices, and an area devoted to lightning arrester development on the third floor.

The High Bay section of the building is 165 feet long by 95 feet wide. The height to the roof trusses is 75 feet. A 25-ton bridge crane, which is 65 feet above the floor, was the longest span overhead crane of its capacity in the world when installed. One of the two High Bay impulse generators was mounted on an electrically-driven wagon, and could be moved outdoors for testing which required even greater clearances than were available inside. Tracks carried the wagon and generator through a fifty foot high rolling door which was the largest such overhead door in the world when installed. Power to operate cascade transformers located in the various test areas in the building was obtained from motor-generator sets in a room in the Low Bay section of the building. There was a 1000-Kva test alternator driven by a synchronous motor. This motor operated from the 13,800-volt, three-phase, 60-Hertz plant power system and the alternator it drove could supply only 60-Hertz power to the test areas. A second such synchronous motor drove a 500-volt D.C. generator which, in turn, supplied a D.C. motor driving two 500-Kva test alternators. This variable-speed link allowed these two alternators to supply frequencies other than 60-Hertz if necessary (such as 25-Hertz or 50-Hertz). The Low Bay test areas occupied the three-storey high eastern end of this section of the building. It was served by a 10-ton capacity overhead crane. The first and second floors of the western section housed offices, shops, and darkrooms. The third floor was occupied by offices and test areas for lightning arrester development work. The two-storey high motor-generator room was also in this section, as was the two-storey climate-controlled test area ("Area 5").

Building 9 Low Bay (first floor), (1949)
Building 9 High Bay (1949)

The impulse and 60-Hertz capabilities of the various test areas (in 1949) were as follows:

Location Area Kv-AC Kv-impulse
High Bay 1 1050 5100
High Bay 2 700 5100
Low Bay 3 (high current generator) (high current generator)
Low Bay 4 300 1200
Low Bay 5 300 750
Low Bay 6 (lightning arrester test) (lightning arrester test)
Low Bay 7 300 600
Low Bay 8 100 200
Low Bay 9 150 ----
Outdoor 10 ---- 5100

The high current generator in Area 3 was the original 1934 device. It had been moved and re-worked in its configuration. Later on, it was moved to the High Bay and installed in the southeast corner. This became known as "Area 14".

Area 5 was referred to as the "air-conditioned room". The walls, floor, and ceiling were thermally:- insulated, and access was via refrigerator-type doors. There was a large double door of this type for moving large equipment into and out of the room. Personnel access was via a small door of the same type leading to an adjacent control room. Large Thermopane windows allowed for observation of tests from this control room as well. The room was capable of providing temperature ranges of 0°F to 100°F, over a wide range -of controlled humidity levels. This was_to allow for the testing of insulation components and structures which had to perform in a variety of climatic conditions.

The Building 9 test facilities were primarily intended for use in high voltage development work on all forms of insulating structures and transformer-related devices. The majority of such work involved the determination of the voltage withstand capability (both impulse and 60-Hertz) of insulator strings and bushings. However, a great deal of development work relating to new designs of lightning arresters was carried out as well over the years.

In 1965, the High Voltage Laboratory constructed a fifty foot high "portable" impulse generator. Its main usage was at Leadville, Colorado where an extensive series of tests was carried out to determine the flashover strengths of various types of insulating structures at very high altitudes (atmospheric pressure is a factor in this regard). Walt Duda, Hans Morf, and Granville G. ("Pete") Kemp of the Laboratory were instrumental in the design, construction, and operation of this device.

Also very much involved in this project was "Ted" Brownlee. Ted retired from the Laboratory in 1968, after a forty-four year career at Pittsfield G.E. Ted had graduated from Rensselaer Polytechnic Institute in Troy, New York in 1924. He worked with Dr. Karl McEachron in Pittsfield and assisted with setting up the first high-speed cathode ray oscillograph in the country for recording lightning-type discharges. Ted worked with Julius Hagenguth in planning the operation and design of Building 9. Eventually, he became a Fellow in the Institute of Electrical and Electronic Engineers (IEEE), having written a total of five technical papers on the subjects of lightning and high voltage testing.

A great deal of production-type testing was also performed in Building 9 over the years. This occurred whenever the "factory" test facilities normally used to perform this type of work became overloaded, or when new, higher voltage products were being built which had test requirements that exceeded the production test area capabilities. Much testing of high voltage bushings was carried out in Building 9 over the years for these reasons.

In addition, over the nearly forty year history of Building 9, a great deal of highly specialized, and often very fascinating, testing was carried out on very unusual types of equipment, both for industry as well as for the United States Government. This included a series of tests for the National Aeronautics and Space Administration (NASA) which involved the protection of rockets on launching pads at Cape Canaveral (now Cape Kennedy) in Florida from lightning strikes. Florida has one of the highest incidence rates for lightning in the country.

Also, beginning in the late 1960's, the old (1934) high current generator in the corner of the High Bay was put into service for the investigation of effects related to lightning strikes to aircraft. Primarily, this work was performed for the United States Air Force. The need for it arose because new "composite" type materials had been developed for use in airplane construction which were lighter than conventional aluminum construction. Unfortunately, these materials do not provide the "shielding" effect from lightning surges which metals such as aluminum do. This problem was compounded by the increasing use of delicate computerized electronic equipment on airplanes which is very susceptible to damage from such surges. At one point in time, an actual Air Force fighter plane wing was brought into Area 14 in the High Bay. Impulse currents from the high current generator were discharged through it, and the induced surge voltages on control wiring within the wing were measured. Larry Walko, of the Laboratory engineering staff, conducted this work. Subsequently, he went on to continue such work at the Wright-Patterson Air Force Base in Dayton, Ohio.

Air Force wing and High Current Generator courtesy of General Electric Company
Building 9 in 1949, courtesy of General Electric Company
Building 9 in 1996 photo by author
High Bay area of Building 9, courtesy of General Electric Company
Low Bay area of Building 9, courtesy of General Electric Company
Area 5, the "air-conditioned" room, courtesy of General Electric Company
The Building 9 motor—generator room, courtesy of General Electric Company
The 3.6-MV portable impulse generator, courtesy of General Electric Company
A 60-Hertz flashover in the High Bay, courtesy of General Electric Company

Outdoor Test Area

As power system voltages rose higher and higher, high voltage testing requirements rose as well. Thus, eventually, even the generous testing space of the Building 9 High Bay was not sufficient for the highest voltage tests which had to be performed. This was true especially for switching surge impulse tests. These discharges had a habit of seeking far off points of termination, such as the walls of the building!

Accordingly, in 1968, a new outdoor testing facility went into operation near Building 9. This came to be known as "Area 72" since the building which served as control house, office, and work space was designated as Building 72 according to the plant's building numbering scheme. This was located east of New York Avenue and north of Merrill Road, east of the plant. It is the space now occupied by the Pittsfield Generating Company's co-generation plant.

An impulse generator was designed for Area 72 which. featured an enclosed inner stack for protection against the weather. Dry, filtered air was blown up through this stack in order to maintain the ability of the generator to withstand the high voltages produced during its operation. Originally, the generator was designed to be able to produce discharges of up to 7200-kv. However, it was never actually built up higher than was necessary to produce an output of 5000-kv. As such, however, it stood eighty feet tall and was braced to withstand a wind load of up to 75 miles per hour.

A very notable feature of this generator was that it was equipped with an internal elevator which rose up through the enclosed stack. This was a decided convenience for the operators when changing circuit connections in the generator or performing necessary routine cleaning operations.

Area 72 was also equipped with three 500-kv cascade transformers which allowed for 60-Hertz testing up to 1500-kv. For the testing of large bushings whose lower ends had to be immersed in oil, a cylindrical tank was used which was 25 feet high and 20 feet in diameter. This tank contained 52,000 gallons of 10C oil (transformer oil).

There was also a large "H"-frame steel transmission line tower which was used for flashover level testing of various insulator string configurations.

When Pittsfield transformer operations ceased in 1987, the Area 72 impulse generator was dismantled and moved to Project UHV on East New Lenox Road. There it was re-assembled and is still being used for impulse testing purposes by EPRI (Electric Power Research Institute) which now operates that facility. The other Area 72 equipment was either re-located or scrapped.

Area 72 tower for insulator testing, courtesy of General Electric Company
Area 72 impulse generator, courtesy of General Electric Company
Cascade transformers and bushing test tank courtesy of General Electric Company
"Wild" switching surge flashovers in Area 72 (multiple exposure), courtesy of General Electric Company

Chapter 10: Impulse Testing

Proper impulse testing requires that a surge of a known voltage magnitude and a definite duration (about 100 microseconds total), and having a known polarity, be produced on demand. Early attempts at impulse testing were crude in regards to all of the above!

F.W. Peek, Jr. was a pioneer in this field. In a paper for the American Institute of Electrical Engineers titled "The Effect of Transient Voltages on Dielectrics" and published in the AIEE Transactions of September 16, 1915, Peek described the following circuit which he used to produce impulse type waveforms:

where: Rw = water tube resistance L = single layer coils C = tin foil and glass plate capacitors

According to Peek, this arrangement occupied about a ten foot by twelve foot area. With sufficiently high values of resistance, the normally oscillatory circuit would be overdamped and just one surge wave would be produced. Because of the A.C. excitation, however, the polarity of this surge could not be predicted!

The basic frequency of the surge, which determined its duration, was a function of 2L, C/2, Rw, and the effect of the test piece.

The sphere-type spark gap would break down at the crest of the applied 60-Hertz waveform. It acted both as a switch, initiating the surge, and as a crude form of voltmeter to determine its magnitude.

In 1925, however, a circuit known as the "Marx" impulse generator (named after its inventor) was developed. This was an ingenious means of charging a bank of capacitors in parallel, to some moderately high D.C. voltage, and then discharging them in series in order to multiply this voltage by the number of capacitors in the bank. Thus, surges of very high voltage, and of known polarity, could be produced.

If, for example, twenty capacitors are all charged in parallel to a voltage of 100-kv, then discharging them in series produces an output of 20 x 100 = 2000kv, or two million volts. In practice, however, the presence of necessary external circuit elements (resistance and capacitance) to shape the output waveform to that which is desired will cause some amount of "regulation". That is, the actual attainable voltage will be somewhat less. Typically, about 80% of the theoretical maximum output voltage can be obtained; in this example, that would be 1600-kv, or 1.6 million volts.

The capacitors are charged in parallel through a network of resistances as shown on the diagram on the following page. Typically, the generator capacitances would be in the range of 0.1 to 1.0 microfarads. The charging resistances would be in the range of 10,000 to 50,000 ohms.

If C = 0.5 microfarads and total R = 50,000 ohms, then the charging time constant is RC = 25,000 microseconds. The capacitors would be fully charged in four time constants, or 100,000 microseconds (1/10 of a second). The total duration of a standard impulse waveform is only about 100 microseconds. Thus, the discharge time of the impulse generator is very much shorter than the charging time.

Marx impulse generator circuit

On the Marx circuit diagram, the pairs of circles shown connecting capacitors to each other represent sphere gaps. These are the means by which the capacitors are discharged in series. Typically, these gaps were composed of pairs of polished copper or brass spheres, about six or eight inches in diameter. When these gaps spark, they automatically connect all of the charged-up capacitors in series.

The capacitors are charged by means of some form of high voltage D.C. power supply. The diagram shows a simple half-wave rectifier circuit which sometimes was used. More commonly, however, a full-wave or a voltage-doubler type of circuit was used. The impulse generators in the High Voltage Laboratory typically used "Kenotron" high-vacuum rectifier tubes in their power supplies. Thus, the diagram shows two transformers supplying A.C. power: one for the charging voltage itself, and the other to light the filament of the Kenotron tube.

Some means was provided for initiating the impulse generator discharge by causing the first (bottom) gap to spark over. The crudest method of doing this would be to bring the gap spheres closer together momentarily. However, more sophisticated methods were used for the purpose of "firing" the generator so as to be able to synchronize the triggering of a measurement oscilloscope with the firing of the gaps. This enabled a trace of the resulting surge output waveform to be seen on the cathode ray tube, and to be recorded by means of a camera.

The firing of the first gap in the generator acts in such a way as to cause a cascading effect voltage-wise through the remainder of the generator circuit. This insures that, following sparkover of the first gap, the rest of the gaps will sparkover as well.

One means of causing the first gap to fire was the use of a three-element gap in this location. A pulse, or "mini-surge", was applied to the third element of this gap so as to disturb the voltage across the.gap and cause a breakdown. For the impulse generators in the High Bay of Building 9, this mini-surge was supplied by a miniature impulse generator known as a "trip set". This was a series of capacitors, resistors, and small sphere gaps arranged in a Marx circuit and mounted in a wooden box. It would produce a pulse of a few thousand volts to trigger the first gap of the impulse generator. The trip set, in turn, was triggered by a signal from the oscilloscope.

High Bay impulse generator and overhead crane; Berkshire Athenaeum, Pittsfield, MA
Area 2 generator moved outside courtesy of General Electric Company
Impulse generator sphere gaps; Berkshire Athenaeum, Pittsfield, MA
Kenotron tubes (voltage-doubler circuit); Berkshire Athenaeum, Pittsfield, MA

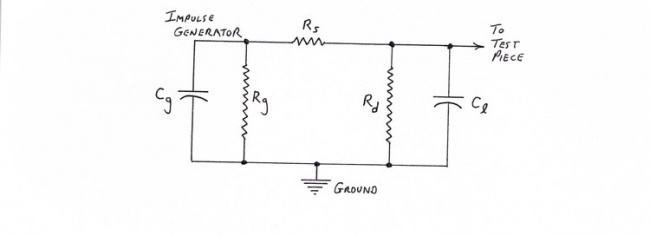
The Impulse Test Circuit

The purpose of impulse testing is to demonstrate the ability of electrical apparatus to withstand the type of high voltage surges created on electric power systems by natural lightning. Since lightning displays a range of electrical characteristics, the surges which are produced have a statistical range as well. Therefore, the electrical industry, through the American National Standards Institute (ANSI), had to define a standard surge waveform which would adequately represent the effects of natural lightning surges on the average.

The acceptance of such a waveform by the industry was the result of data collected over the years from lightning field investigations such as the Empire State Building investigation in New York City (described in Chapter 13). The agreed upon waveform is known as a "double exponential" because it can be represented mathematically by two exponential functions having two different time constants:

Blalock - page 163.jpg

The "crest kv" is determined (per. ANSI standards) by the normal operating voltage rating of the device being tested. The "time to crest" and "time to half-value" are also defined in these standards. Originally these values were 1.5 microseconds and 40 microseconds respectively. Eventually, however, the accumulation of more lightning field data caused these values to be modified to 1.2 microseconds and 50 microseconds. The resulting waveform is referred to as a "1.2 x 50" wave.

The actual impulse test circuit which is used to produce such a waveform in the laboratory has a configuration as shown below:

Blalock - page 164.jpg

The capacitance, Cg, is the capacitance of the impulse generator when it is discharging into the test circuit (when the sphere gaps fire). For example, if a generator composed of twenty banks of capacitors has a capacitance of 0.2 microfarads per bank, then the total series capacitance upon discharge is 0.2/20 or Cg = 0.01 microfarads.

The resistance, Rg, is, inherently, the equivalent of all of the charging resistances in the generator, which appear in parallel with Cg upon discharge of the generator. Sometimes, in order to obtain the required time to half-value for the impulse waveform, additional Rg resistors would have to be connected externally from the top of the impulse generator to ground. This external Rg would take the form of a long string of resistor "cards" or "tubes", these being insulating forms upon which the resistance wire was wound. Some form of an insulating structure would be used to hold these individual resistor units securely in place during the test. Typically, the value of Rg would be in the tens of thousands of ohms.

The resistance, Rs, is series resistance added to prevent the waveform from being oscillatory; the double exponential waveform is a damped (non-oscillatory) type of waveform. Again, this would take the form of a long string of resistor units hung in the air from the top of the impulse generator to the terminal of the test piece which was being impulse-tested. Normally, Rs would be a few hundred ohms in value.

The resistance, Rd, is normally what is known as a "voltage divider" (see Chapter 11). This is a device which allows for the display and measurement of the resulting impulse waveform on an oscilloscope. Again, this would be a long string of resistor units connected from the impulsed terminal of the test piece to ground. The value of Rd would be several thousands of ohms.

The capacitance, Cl, might simply be the inherent capacitance of the test piece itself. This would be the case if the device being impulsed was a high voltage bushing, or some such similar apparatus. For a typical large bushing, the value of Cl would be on the order of 500 picofarads (0.0005 microfarads). Sometimes, in an effort to achieve an acceptable impulse waveform, additional Cl would have to be added to the circuit. Often, this would take the form of a tall stack of porcelain "coupling capacitor" units. These are used in electric power systems to couple communication signals onto the high voltage power lines.

As a practical matter in impulse testing, the procedure for determining a workable circuit makes use of simplifications in the mathematical analysis of such a circuit. Normally, both Rg and Rd are very much larger in value than Rs. Also, Cg is very much larger in value than Cl. Under these conditions, analysis of the impulse circuit shows that, approximately:

Time to crest = 3 x Rs x Cl

and, Time to half-value = 0.7 x Rd x Cg (ignoring Rg)

where the times are in microseconds, resistance is in ohms, and capacitance is in microfarads. These two relationships form a starting point for the development of a practical impulse circuit. However, many other factors enter into the determination of the final circuit needed to obtain the required waveform. In practice, experience on the part of the impulse operators is the prime factor in developing a usable impulse circuit in a reasonable amount of time.

Simply, when the generator fires, Cl is Charged up through Rs (creating the wave "front"); then, Cg (and Cl) discharge through Rd (and Rg) to form the "tail" of the wave. The Crest Kv is determined by the initial D.C. charging voltage used in the generator.

"Factory" Impulse Testing

The early impulse, or "lightning" generators were fairly crude devices. Thus, they were suitable only for laboratory work. The generators were charged by connecting their capacitors momentarily to a source of high voltage alternating current, via a testing transformer. Thus, one could not be certain of the magnitude, or even the polarity, of the resulting discharge.

By 1930, however, the development of the Marx circuit and the Kenotron tube (for D.C. charging) had brought the impulse generator to a level of sophistication that allowed for the possibility of the impulse testing of transformers on a production basis. This was desirable in order to demonstrate to a customer that the transformer insulation could withstand the type of surges it would be subjected to by natural lightning while it was in service.

In August of 1930, the first commercial impulse test was performed on a transformer at the Pittsfield Works. This was a 13,000-Kva transformer built for the New England Power Company, for use on a new 220-kv line at Fifteen-Mile Falls in Vermont. Surges of 3-MV magnitude (three million volts) were applied by running a special line from the High Voltage Laboratory in Building 12A to the transformer test berth. This test was considered to be so dangerous that it was performed during the late night and early morning hours when very few people were around! The tests were conducted by Julius Hagenguth, and the transformer had been designed by Hagenguth and Aron Kvist, under the direction of F.F. Brand.

The impulse generators in Building 12A were of the "stair-step" type; that is, the capacitor banks were mounted as if on the steps of a staircase. During the 1930's, however, a distinctive type of vertical impulse generator configuration was developed by G.E. This utilized capacitor cans mounted inside of black insulating cylinders. The first major use of this design was for the G.E. exhibit at the 1939 New York World's Fair (see below). Thus, this type of impulse generator became known as the "World's Fair" design.

In later years, this same design was used for commercial test impulse generators in the Building 12 complex of the Pittsfield plant. These included both a 1.5-MV and a 2-MV generator for use in Building 12, as well as a 3-MV generator for use in Berth 26 at the south end of Building 12X. When Building 12Y was added in 1950, two impulse generators of this type were built for use in the test berths at the north end of this building. One, in the West Bay, was initially rated at 2-MV and the other, in the East Bay, was rated at 3-MV. The West Bay generator was later uprated to 3-MV as well.

When Building 100 was constructed in 1968, two of the 3-MV generators were moved there: the one which had been in use in Building 12X, and the one from the East Bay of Building 12Y. The Building 12Y West Bay generator remained in place for impulse testing of smaller transformers which continued to be built in the Building 12 complex. In addition, a 4.2-MV impulse generator was purchased from the Emil Haefely Company of Zurich, Switzerland for use in Building 100.

"Steep Front" impulse test in Building 12Y in 1955 (rod gap on center bushing) courtesy of General Electric Company
2-MV impulse generator in Building 12 in 1950 (with "Cl" stack and "Rs" rack at left) courtesy of General Electric Company
Large unit being impulsed in Building 100 in 1968 (Haefely generator in background) courtesy of General Electric Company

The 1939 New York World's Fair

"Steinmetz Hall" housed the most talked-about exhibits in the General Electric Building at the 1939 New York World's Fair held in Flushing Meadow in Queens. The main features were an artificial lightning discharge between two impulse generators, and a one million volt three-phase arc.

According to K.B. McEachron in his book titled "Playing with Lightning":

'The appearance of the room, with the house lights lowered and red signal-lights glowing, with the tall forbidding stacks of black and chromium from which protruded shiny sphere-capped rods in weird profusion, was enough in itself to quicken the lay-watcher's pulse, and his feeling of tension and uneasiness was usually somewhat heightened by the sharp odor of ozone which pervaded the atmosphere as a result of past demonstrations.'

The lightning discharge was thirty feet in length, and occurred between two thirty-four foot high impulse generators. Each generator was charged to a potential sufficient to create five million volts to ground upon discharge, one of positive polarity and the other of negative polarity. Thus, the resulting discharge between the two attained a potential of ten million volts and the current which flowed was about 22,000 amperes. The sound, within the large echo-prone hall, must have been deafening!

Each generator was composed of six black and chromium legs which housed the capacitors. The black portions were insulating tubes about three feet in diameter. Shorter tubes contained the capacitors, while taller tubes were merely empty insulating tubes which were necessary in order to build up the required height for the generators (due to the magnitude of voltage developed between capacitor banks).

Each bank of a generator was composed of three 0.33 microfarad capacitors connected in series. Each bank was charged to about 300-kv D.C. by a full-wave Kenotron tube rectifier. Seventeen banks discharging in series produced an output Voltage of slightly more than five million volts (5000-kV).

The one million volt three-phase arc was produced by using three sets of two cascade transformers each, one set per phase. Each transformer was rated for an output voltage of 350-kv. Thus, two in cascade pro- duced 700-kv to ground. This translates into 1200-kv phase-to-phase, or in excess of one million volts. The first transformer of each set was on the floor, and the second was raised five feet off the floor on an insulating cylinder. Power to operate the cascade transformers was provided by a motor-generator set, in an adjacent room, which consisted of a 1500-horsepower synchronous motor driving a 1500-kilowatt, 60-Hertz generator.

A detailed description of this apparatus was published as an article titled "10,000,000-volt Sparks and 1,000,000-volt Arcs" in the October, 1939 issue of the 'General Electric Review' magazine.

Following the closing of the World's Fair in 1940, parts of the impulse generators were used to assemble a smaller generator which was sold to the High Voltage Laboratory of the United States Bureau of Standards in Washington, D.C. The remaining parts were shipped to Pittsfield where they were stored until being used to construct the two High Bay impulse generators in Building 9 in 1948.

Likewise, the cascade transformers found use in laboratory and commercial transformer testing in Pittsfield and elsewhere for many years thereafter. One of these units was still in use in Building 100 Test in Pittsfield until the closing of the transformer operation in 1987. Others were still in use in Building 9 as well.

As constructed in the High Bay of Building 9, the two impulse generators were still of six-legged configuration as at the World's Fair. However, the actual arrangement was different: at the World's Fair, the legs were in a hexagonal arrangement; in Building 9 they were in a rectangular (3 x 2) arrangement. They each still consisted of seventeen banks, each bank able to be charged to 300-kv maximum. Thus, they were still rated at 5100-kv output.

Because of their black-and-chrome appearance, an article in 'Newsweek' magazine of July 4, 1949 which dealt with the new High Voltage Laboratory facility in Pittsfield said that "the new generators, towering five stories, looked like enormous clarinets"! (The generators stood over fifty feet high.)

The two High Bay generators were capable of producing a 15,000,000 volt discharge between them, by. charging one positively and one negatively as at the World's Fair. However, this was only accomplished by shorting out all internal "Rs" resistance normally in place when producing standard impulse waveforms. When this was done, each generator could produce an oscillatory discharge of 7500-kv to ground.

This, as well as the three-phase arc, were mainstays of the High Voltage Laboratory demonstrations during Pittsfield Works "Open House" events for many years. Eventually, however, laboratory personnel were reluctant to impose such severe duty on the aging components of the impulse generators, and the 15,000,000 volt lightning demonstration was discontinued.

7,500,000-volt artificial lightning discharge to "model village" in Building 9 High Bay ('Open House' in 1949) courtesy of General Electric Company
10,000,000-volt discharge at New York World's Fair, courtesy of General Electric Company
World's Fair generator being dismantled G.E. 'Monogram', December, 1940

Chapter 11: High Voltage Measurements

Special devices and techniques are required for the accurate measurement of very high voltages. This is true for both power frequency voltages (60-Hertz as a rule, but sometimes 50-Hertz) as well as for impulse-type voltages. An additional complication with impulse work is the accurate determination of the waveshape as well as the voltage level.

Originally, before accurate determination of wave-shape became essential, "sphere gaps" were used both for 60-Hertz, and impulse voltage measurement. These devices have been used for laboratory measurement of high voltages since about 1914. Gaps of other configurations were in use long before that, but with much less accuracy possible. The high accuracy of sphere gap sparkover levels has to do with the very uniform electric field which exists between two spheres or between a sphere and a ground plane.

Sphere gap sparkover (breakdown) is, however, still affected by the temperature and barometric pressure in the vicinity of the gap. It can also be affected by the roughness of the surfaces of the spheres. Thus, spheres need to be highly polished in order to retain the greatest degree of accuracy for voltage measurements.

Originally, sphere gap sparkover levels were established by comparison with voltage readings from 60-Hertz meters. A common practice with cascade transformers was to include a "voltmeter coil" in the design of the transformer. Typically, this would be a "1000-to-1" coil which would provide one volt for each kilovolt of output from the transformer. Thus, safe voltage levels were provided which could be read on a meter.

Such 60-Hertz sphere gap sparkover levels do-not, however, hold- true for impulse voltages. Thus, for that purpose, new sparkover data had to be accumulated by comparison with other devices known as "voltage dividers". F.W. Peek was very instrumental in the early compilation of sphere gap sparkover data.

This calibration procedure can become a "chicken-and-egg" type of situation. In other words, the calibration standard is sometimes determined simply as the measurement system in which the investigator has the most faith! In case of discrepancies, it is also possible, for some situations, to actually calculate the expected sparkover level for a gap from theoretical electric field analysis. Usually, however, this is a difficult procedure.

Sphere gaps are rarely, if ever, used anymore for routine testing purposes. However, they may be used occasionally as a check on a production measurement system. Such a sphere gap check was made on the measurement system routinely used for impulse testing in Building 100 of the Pittsfield plant in 1985.

However, in years past, the use of sphere gaps was quite common. The following is the procedure for use of sphere gaps in insulation tests on transformers, taken from a 1950 'Test Manual for Production Test' in the Pittsfield plant. This applied to 60-Hertz "hi-pot" tests and higher frequency "induce" tests.

(1) Set the gaps for a 70% applied voltage, arc them, and record the voltage. This is a preliminary circuit check.

(2) Set the gaps for 100% applied voltage, and raise the voltage to 70% of the required value. Hold this voltage for one minute on hipot test or 18 to 30 seconds on induce test. Reduce the voltage and check the transformer for any indication of a breakdown. This is called a bubble run.

(3) Leave the gaps set for 100% of the applied voltage, arc them, and record the voltage. Repeat this procedure two more times, obtaining three voltage readings, the average of which is the voltage to be used on the high potential or induced voltage test.

(4) Set the gaps for 120% of the applied voltage, raise the voltage until the meter reads the average obtained in (3) above and run the insulation test according to the previously outlined procedure. The gaps should not be arced at the 120% setting; if they should arc, open the breaker immediately and attempt to locate the trouble.

In Step 3, the transformer being tested is not connected in the circuit. The gaps are set at a spacing corresponding to the desired test voltage, and. the reading on the test berth voltmeter is recorded when the gap sparks over. This is repeated three times to obtain an average. Then, with the transformer connected in the circuit, this voltmeter reading is held with the gaps set at a 120% spacing (Step 4). As indicated, this is done just in case of trouble.

The above indicates that voltage measurement during high voltage tests was time-consuming with the use of sphere gaps. Eventually, voltage dividers were developed which were sufficiently reliable (as far as accuracy is concerned) to replace sphere gaps. This was an essential development, for impulse testing when such tests became sophisticated enough that an accurate record of the waveshape was desired. This was not possible with crude sphere gap techniques.

50-centimeter diameter sphere gap set Berkshire Athenaeum, Pittsfield, MA

The most common: means of measuring the output voltage of an impulse generator during standard "lightning" type impulse tests has been by means of a "resistive" voltage divider. A long string of resistance elements: (usually "cards" of resistance wire wound on insulating forms) is connected between the impulsed terminal of the test piece and ground. At the ground end of the string, a low value resistor is included. A coaxial cable is used to convey the voltage signal appearing across this resistor to a measurement oscilloscope. Thus, a very low voltage replica of the impulse generator output is seen on the oscilloscope screen. The actual crest kv of the impulse waveform can be determined by means of the divider ratio, as in the example below:

Blalock - page 176.jpg

The coaxial cable used to connect the divider to the oscilloscope is assumed to have a characteristic impedance of 75 ohms. Thus, it is terminated at the oscilloscope end by a 75-ohm resistor in order to prevent signal reflections which would distort the appearance of the waveform on the oscilloscope screen. In other words, it would not be an exact representation of the actual high voltage waveform appearing at the impulsed terminal of the test piece.

A variation on the resistive voltage divider is the capacitive divider. A type of impulse test known as a "switching surge" test is used to demonstrate that a piece of equipment is capable of withstanding high voltage surges caused by switching operations on very high voltage power systems. Field investigations have shown that the waveform which best represents such surges is considerably longer in duration than lightning-type surges (a few thousand microseconds total). It turns out that it is difficult to create a usable impulse circuit for such tests with a resistive voltage divider included in the circuit. The resistance of the divider prevents the formation of a long enough duration impulse waveform.

Thus, capacitive dividers are normally used for such tests. Two values of capacitance can be used to form a voltage divider just as can two resistances:

Blalock - page 177.jpg

High voltage bushings are usually provided with a "capacitance tap" which is used to check the bushing's condition from time to time while it is in service. This "cap tap" can be utilized to form a capacitance voltage divider. In the diagram on the previous page, the cap tap would be the junction between Cl and C2. 450 picofarads (micro-microfarads) would be a typical value of bushing capacitance from the bushing high voltage terminal to the cap tap. Normally, the capacitance from the cap tap to ground would be on the order of only 5000 picofarads. Such a large amount of external capacitance must be added in parallel with this in order to obtain a usable divider ratio (1.6 microfarads in the diagram) that this inherent bushing capacitance to ground can be ignored. This external capacitance is referred to as a "padder".

Capacitive voltage dividers can also be used to measure high power frequency voltages (such as 60-Hertz) and, for this usage, a simple voltmeter is all that is required to read the output voltage. Capacitive dividers can be designed for use with "lightning" type impulse tests. However, the much faster rates of change associated with such waveforms means that special precautions must be taken in the divider design to insure that the waveform displayed on the oscilloscope is, in fact, a faithful reproduction of the actual impulse waveform. Such a divider was designed and built for use with the impulse generator in Area 72, the outdoor test facility associated with the High Voltage Laboratory, in the late 1960's.

Oscilloscopes

The "cold-cathode" type of oscillograph, as described in Chapter 9, was eventually replaced with a hot-cathode type of oscilloscope. This concept still forms the basis of operation of oscilloscopes in use today. A sealed, phosphor-coated cathode-ray tube is used and film used to record impulse waveforms is in an external camera. This greatly simplifies the film-changing procedure.

A hot-cathode oscilloscope developed for use in the High Voltage Laboratory was known as the "HC-25". It was about the size of a large refrigerator and, sometimes, contained two cathode-ray tubes for the simultaneous recording of the applied impulse voltage and the resulting impulse current through the test piece. These devices were in use well into the 1970's.

In the meantime, however, a special type of oscilloscope was developed for impulse testing by the Tektronix Corporation, still a leading manufacturer of oscilloscopes and related devices. This was known as the Type "507", and remained in use until the closing of the transformer operation in 1987.

Originally, conventional photographic film was used to record the impulse waveforms. This required the presence of a darkroom to process the exposed films in a reasonable amount of time. Eventually, however, the use of instant Polaroid-type film became a standard procedure for this purpose. Obviously, this greatly simplified the film-handling procedure.

Type HC-25 oscilloscope in use Berkshire Athenaeum, Pittsfield, MA
Type 507 voltage and current oscilloscopes courtesy of General Electric Company

Chapter 12: Electrical Modelling

Over the years, the High Voltage Laboratory utilized specialized equipment and techniques for the purpose of modeling various high voltage phenomena. This included the modeling of electrostatic fields around high voltage electrodes, transient voltages in transformer windings, simulation of impulse failures in transformers, and determination of lightning-induced surges in high voltage transmission lines. Also, at one time, actual scale models of transformer winding and core configurations were built in order to determine the transient voltage distribution in a design before a full-size production unit was built.

The Electrolytic Tank

A prime function of the High Voltage Laboratory was to investigate the insulating ability of various materials and structures in the presence of very high voltages. When a conducting electrode is operating at a very high voltage with respect to ground, the resulting behavior as regards possible electrical breakdown is determined by the electrostatic field which exists between this electrode and ground. In particular, the start of an electrical breakdown is a function of the severity of this field in the vicinity of the electrode. The severity is determined by the "gradient" of the field; that is, how rapidly the field potential (or voltage) changes with distance.

The electrostatic field is described by imaginary sets of intersecting lines. The "equipotential" lines define the voltage at various points in the space between the electrode and ground. Intersecting these are lines of force, or gradient lines, which determine how rapidly the field voltage is changing from point to point in the space. The equipotential lines and the lines of force are always at right angles (orthogonal) to each other.

For example, consider a high voltage sphere which is suspended above a flat ground plane. The electrostatic field appears as shown below:

Blalock - page 182.jpg

A very interesting example of how the electrostatic field gradient influences the behavior of an electrical breakdown is shown in the photograph on the following page. This unexpected flashover occurred in the High Bay of Building 9 during tests to determine the breakdown level of this particular sphere-to-plane gap configuration. This was an impulse-type flashover.

One would certainly expect the flashover to occur between the sphere and the ground plane on the floor. However, the actual flashover occurred over a much greater distance. This had to do with the configuration of the electrostatic field. Between the sphere and ground plane, the field is very uniform. Thus, the gradient is relatively low. Apparently, the field gradient at the point on the supporting cylinder where the flashover originated was very high. Once started, the flashover followed a line of force, the route of highest gradient, to ground!

Sphere-to-plane flashover courtesy of General Electric Company

The electrolytic tank (or electrolytic pond) was a method for quantitatively modeling electrostatic fields so as to determine regions of high gradient which could lead to electrical breakdown. Today, however, powerful digital computer software is available which can accomplish the same result in very much less time. Somehow, though, setting up field problems in the "tank" was much more fun!

The tank really was a tank; it was about eight inches deep and was filled with ordinary tap water. There are enough impurities in tap water to give it some resistivity. That is, a small electric current can be made to flow through it. Thus, a "resistive" field, or current field, was established in the tank which represented an electrostatic field in space. By probing the surface of the water with a needlepoint, the potential with respect to ground at any location in the tank could be determined. Then, the equipotential lines could be plotted on a sheet of drafting paper with the aid of a pantograph-type of device. The pantograph rolled on tracks and spanned the area over the tank as well as an equal adjacent area over the drafting paper.

Once the equipotential lines were plotted, direct measurement between two closely-spaced lines gave a value for the field gradient in terms of kilovolts per inch, when all of the appropriate model scaling factors were accounted for. If this gradient exceeded a certain value, then it was known that an electrical breakdown would be likely in the real-life configuration which was being modeled in the tank. This is extremely valuable information for designers of high voltage equipment to have before actually going to the expense of building an actual device. Obviously, there is a great application for this sort of laboratory endeavor in the design of high voltage transformer windings and high voltage bushings and insulators. Thus, such an electrolytic tank was installed and used in the Building 9 High Voltage Laboratory.

Since lines of force are also known as lines of flux ("flux" meaning flow or rate of transfer), this technique was often referred to as "flux-plotting". More detail on this topic can be found in Chapter 6 of the book "Field Analysis" by D. Vitkovitch, published by Van Nostrand Company in 1966.

The Building 9 electrolytic tank was rectangular and measured 36 inches by 60 inches. In order to model a sphere-plane configuration such as described above, a flat copper electrode would be placed along one side of the tank and a curved copper electrode, representing the sphere, would be located within the tank. Because of the axis of symmetry inherent in this configuration, only half of the sphere would have to be represented. An a.c. voltage would then be applied between the sphere electrode and the ground plane electrode, and the equipotential lines plotted using the needle probe and a null-detecting oscilloscope arrangement.

For the modeling of electrostatic field configurations which involved considerable distances between electrodes, a quite fascinating method was used to provide an extension in space of the total field as modeled in the tank. This, then, allowed for more detailed modeling of that portion of the field which was of most interest. This method involved the use of a second tank which was electrically connected to the tank in which the detailed modeling was done. This second tank represented an inverse space which allowed for the extension of the field being modeled to near infinity.

If the center of the rectangular tank is considered to be a point of origin for a system of coordinates, then a vector, R, can be used to locate any point within the space being modeled. The perimeter of the rectangular tank was connected, via many closely-spaced pins and connecting wires, to the perimeter of the second tank. This tank was physically located directly underneath the rectangular tank, and the center of this tank represented infinity! Thus, as the vector, R, in the rectangular tank approached infinity, a corresponding vector, 1/R, in the second tank approached zero (the center of that tank). In other words, the two tanks together represented an infinite space!

Rectangular tank, inverse-space tank

Electrodes placed in the inverse-space tank would have to be shaped so as to reflect the fact that they were located in an inverse space. For example, the representation of a straight ground plane would be a curved electrode in the inverse-space tank. It was possible, theoretically, to follow equipotential lines with a needle probe in the inverse-space tank (which, of course, was also filled with water). Interpretation of the results of this procedure, however, would require a very clear understanding of the mathematics of the space transformation between the two tanks!

A second pair of tanks was available in the High Voltage Laboratory. The main tank had a sloping bottom and was used for the modeling of electrostatic fields which exhibited "rotational symmetry". This would occur, for example, when modeling the field axially along the central core of a high voltage bushing. Since this field would be symmetrical all around the bushing core, only a pie-type wedge would have to be modeled. Thus, the tank had a sloping bottom for use with these types of configurations.

The second tank of this pair was, again, a space-expanding tank. Since the main tank had a sloping bottom, this tank had to have a hyperbolic bottom, in order to represent an inverse space. At "infinity", this tank would need to be infinitely, deep; thus, the slope of its bottom was stopped at a point and the extension to infinity was represented simply by a network of discrete resistors.

Pantograph and flux-plotting instrumentation, courtesy of General Electric Company
Sloping-bottom and hyperbolic tanks, courtesy of General Electric Company
Flux Plot of a high voltage capacitor (with equipotential percentages), courtesy of General Electric Company

Transient Analysis

At normal operating frequency (such as at 60-Hertz), the voltage distribution through a winding in a transformer is linear; that is, there is a direct correspondence between voltage and turns anywhere in the winding.

However, for short duration voltage surges, such as are caused by lightning, this is no longer true. The reason for this is that stray capacitances inherent in the winding configuration distort the relationship between turns and voltage. Such short duration surges behave, electrically, much like high frequencies. Thus, the effects of winding capacitances become significant whereas they are not at operating frequency. At low frequency, only the inductances of the windings are involved in the determination of the voltage distribution throughout the windings.

In reality, for moderately fast surges, both the inductances and the capacitances play a role in determining the actual voltage distribution in a transformer winding. Thus, the resulting equivalent network which represents the winding becomes rather complex, and the analysis of this network by calculation is very difficult, if not impossible.

The major capacitances involved include both series capacitances between adjacent turns of a winding, and capacitances to ground (the core and/or the tank) from various parts of the windings.

One of the basic problems in reaching an exact solution of the equivalent network is that the actual values of these capacitances are not easy to determine. However, some mathematical simplifications can be made and, as a result, the transformer insulation design engineers did develop some basic guidelines based on theory for these values. This allowed an estimation of the amount of insulation which was needed in various parts of the transformer windings in order to prevent electrical breakdown as a result of lightning surges. Also, over the years, a great deal of empirical data was compiled based, simply, on previous experience.

It was of great value, however, to have a means of verifying on a completed transformer exactly what the winding voltage distribution was under surge conditions. Also, it was very helpful, for future designs, to know. when this distribution did not conform to theory!

This is where a laboratory device known as a Recurrent Surge Generator, or Transient Analyzer, came into use ("surge" and "transient" are synonymous in the present context). This was a piece of equipment which duplicated, at a much lower voltage, the circuit of the impulse generator which would be used to test the completed transformer. The Transient Analyzer subjected a transformer winding to a repetitive series of surges having the same waveshape as would be applied by the impulse generator. However, whereas the impulse generator would apply this waveshape on a "single-shot" basis at hundreds or thousands of kilovolts, the Transient Analyzer applied the same waveshape at just a few hundred volts.

The early forms of Transient Analyzer used a tube known as a "Thyratron" to simulate the effect of the firing of the sphere gaps upon discharge of the impulse generator. The firing of this tube to apply the surge to the transformer being analyzed was synchronized to the 60-Hertz power which operated -the Transient Analyzer. The surge was produced on alternate half-cycles, and the opposite polarity half-cycles were utilized to charge a capacitance simulating the capacitance of the impulse generator. In simplified form, the circuit was as shown below:

Blalock - page 190.jpg

A series of front panel knobs allowed for the adjustment of all the impulse circuit resistance and capacitance parameters, in order to obtain the desired waveshape for the surge output. This was not a small device; it probably weighed between two and three hundred pounds. The High Voltage Laboratory owned three or four of these which were in use from the 1940's to the plant closing in 1987. Sometimes these devices were used in the laboratory itself to determine the transient voltage distribution in windings built especially for developmental purposes.

Usually, however, the Transient Analyzer was transported (via a rubber-tired buggy) to the "factory". This was the term normally applied, by Laboratory personnel, to the areas in Buildings 12, 12X, 12Y, and 100 where the core and coil assemblies for large production transformers were located.

The object in performing Transient Analyzer tests on these units was to measure the voltages appearing between various parts of windings, as well as between windings, under impulse conditions. Connections would be made, on a temporary basis, to the various winding terminals using a small diameter bare wire known as "hi-pot" wire (because its normal use was for making connections to high voltage devices during hi-pot tests in the Laboratory or in Transformer Test). Normally, these connections included any taps in the transformer windings.

Then, following instructions issued by the design engineer for the transformer, a series of voltage measurements would be made while applying the repetitive surge to specified winding terminals. Very often, such measurements would be the transient voltages appearing between the different taps in the windings in order to check that sufficient tap insulation had been included.

The Transient Analyzer had a built-in oscilloscope on which to view both the waveshape applied to the winding and the resultant transient waveshapes which appeared between winding parts. A 35-millimeter camera attachment allowed for a permanent record of waveshapes displayed on the oscilloscope screen.

First, the front panel controls would be adjusted so that the simulated impulse circuit would produce a standard impulse waveform; that is, a time to crest of 1.2 microseconds and a time to half-value of 50 microseconds. The magnitude of this applied waveform would be set so as to be convenient for viewing on the screen of the oscilloscope. This, then, represented a "100%" voltage level. All measured voltages would be expressed as a percentage of this. If the winding which was being analyzed was to receive an impulse test at a level of 1050-kv, then this is what the one hundred percent value corresponded to. All measured voltages could then be expressed in terms of real kilovolts.

If a tap-to-tap voltage was measured as being 2% of the applied voltage, this meant that 21-kv would appear between those points during the 1050-kv impulse test. If more than sufficient insulation had been provided to withstand this voltage, future designs could use less insulation in order to cut costs in the design.

Developmental usage of the Transient Analyzer, courtesy of General Electric Company
Transient Analysis on a large transformer, courtesy of General Electric Compahy
Transient Analyzer applied voltage waveform (crest = 100%), courtesy of General Electric Company
Typical internal winding voltage (crest = 38.7%)

Sometimes it was necessary to measure transient voltages within windings at points which were not normally accessible by direct connection (such as taps are). If the analysis was of a failed winding, needle probes could be driven through the insulation in order to make connection with such points (since the winding would then be scrapped anyway). On new windings, a method was developed which involved the use of capacitively-coupled probes to measure voltages between the layers of multiple-layer windings. These probes were inserted in the oil ducts between layers which provided both insulation and cooling oil flow. These were referred to as "non-destructive probes" because they did not puncture the insulation in order to obtain measurements. A great deal of measurement work of this type was called for over the years by G.G. ("George") Doucette, Jr., a transformer insulation specialist. This work provided a tremendous amount of valuable information which was used to save cost and space in large layer windings by eliminating excess insulation.

Another aspect of transient analysis was the simulation of Thyrite (G.E. trademark), a material used to "clamp" surge overvoltages in transformer windings, particularly in the tap regions of windings. This was a "non-linear" circuit element; that is, its resistive characteristics depended on the voltage applied to it. That is how it acted to protect windings from higher than normal voltages; as the voltage increased across it, its resistance decreased and allowed it to conduct more current, thus limiting the magnitude of the volt- age. Since the output of the Transient Analyzer was only a small fraction of the actual voltage expected across points protected by Thyrite during an impulse test (or in actual service), special Thyrite blocks had to be connected across these points during the transient analysis testing. The characteristics of these test blocks were chosen based on the anticipated impulse test level (in kilovolts) and the actual test voltage applied by the Transient Analyzer. Thus, the non-linearity of the Thyrite material was accounted for, and the measured transient voltages would be an accurate representation of the voltages expected at the full impulse test level.

Failure Analysis

The Transient Analyzer found another very important application in situations where a failure of a transformer winding did occur during impulse testing. This did happen occasionally either because of a deficiency in the design or because of a defect in manufacturing; and, once in a while, because of an error in the testing procedure!

When this happened, it was not always obvious just where the failure had occurred in the winding. Sometimes, there would be visible evidence; for example, if the failure involved a lead external to the winding. For internal winding failures, however, there usually were no outward signs to point the way to the failure location. This meant that more of the windings would have to be torn apart, and subsequently re-built, in order to find the point of failure. This was a very time-consuming and expensive process.

Using the Transient Analyzer, the failure could sometimes be very accurately simulated. This would yield important clues as to the actual location of the failure within the winding. The reason that this could be done was that different types of failures created different types of changes in the photographic records (oscillograms) taken during the impulse test. It was routine to take oscillograms of both the applied impulse voltage and the resulting impulse current which flowed through the winding to ground during these tests. The current waveform was measured by means of a low resistance "shunt" connected between the non-impulsed end of the winding and ground. Obviously, two oscilloscopes were needed to accomplish the recording of both voltage and current simultaneously.

A typical voltage waveform change would appear as shown below:

Blalock - page 195.jpg

In this illustration, the two waveforms have been offset vertically to make the changes more apparent. The failure occurred at time, t, and, prior to this, the two waveforms are in agreement. Had the failure not occurred, they would have continued to agree for the rest of the time span of the oscillograms. This, in fact, was the test for passing or failing; if the waveforms agreed perfectly, the transformer had passed the test.

It should be noted that the "good" oscillogram was obtained by applying an impulse wave to the winding at a reduced voltage level; normally, fifty percent of the actual impulse voltage level for the test. If the winding was to be tested at a level of 1050-kv, an impulse at a level of 525-kv would be applied first.

A failure such as shown above could be simulated by the Transient Analyzer by using a second ThyratrOn tube which would be connected, across a part of the winding circuit which was suspected of having failed. By controlling the time at which the Thyratron tube "fired" and went into conduction, the time of failure on the oscillogram could be reproduced. In this case, the failure would have been from some point near the impulsed terminal of the winding to ground because of the drastic change to the voltage waveform.

A failure within a winding (not to ground) would. also affect the voltage oscillogram because of the effective shorting out of part of the winding at the time of failure, as shown below:

Blalock - page 196.jpg

This might be simulated by connecting the Thyratron between two tap leads from the winding, so as to mimic' the shorting out of a portion of the, winding at the time of failure. There would have to be sufficient voltage, however, between these points to allow the Thyratron tube to conduct at the time of failure. In later years, silicon-controlled rectifier devices were used 'for this purpose, in place of Thyratrons, in order to function at lower voltage levels.

The reason that a winding current oscillogram was taken is that failures involving only small portions of a winding would cause only very minor changes in the applied voltage waveform. However, experience had shown that corresponding changes in the current waveform would be much more pronounced. For example:

Blalock - page 197.jpg

For purposes of illustration, the current waveforms have been offset vertically, but not the voltage waveforms. In this case, a failure within the winding (not to ground) shorted out a part of the winding and caused an increase in the current flow. Also, the actual form of the current wave is decidedly different, whereas the change in the voltage waveform is relatively minor.

Sometimes, the change in the voltage waveform was too small to be seen with failures such as this. That is, less than the width of the trace on the screen of the oscilloscope. Thus, the changes in the current oscillogram were the only indications of the failure!

When performing failure simulations with the Transient Analyzer, a second oscilloscope would be connected across a shunt at the grounded end of the winding so as to view the current waveforms, just as in the actual impulse test.

Geometric Scale Modeling

The Transient Analyzer was an extremely valuable tool for determining the transient voltage distribution in the windings of a transformer. However, its use required the presence of a full-size winding.

During the 1950's, Pierre Abetti of the High Voltage Laboratory developed a technique of using a geometrically scaled-down model of a transformer core and. coils to investigate the transient response of the full size transformer. Obviously, the cost and time which were involved in building such a model were much less than in building the real thing. Scale ratios up to ten-to-one were used; that is, the transformer model might be as small as one-tenth the size of the real transformer which it represented.

One complication with this technique was that, in order to keep the time scale the same, capacitances in the model had to be artificially increased. The reason for this had to do with aspects of the dimensional analysis of the various parameters having an influence on the transient behavior of the transformer, and its model.

It was desirable to keep the time scale the same because the Transient Analyzer used to provide the required impulse waveforms had limitations as to how. "fast" a pulse it could produce. If time was scaled down in the same ratio as the dimensions of the model, pulses with rates of change ten times faster (for a one-tenth model) would need to be produced. However, by "juggling" the capacitance values, this could be avoided.

Thus, many leads were brought out of the geometric scale model of the transformer in order to connect with arrays of capacitors so as to artificially increase all of the transformer part-to-part capacitances in the proper ratio. The model itself properly represented all of the inductances in the transformer. This combination of a geometric core and coils model with an external equivalent capacitance network caused this technique to be referred to as "electromagnetic modeling" rather than straight geometric modeling.

By the 1960's, however, electronic instrumentation techniques had advanced to the point that fast pulse generation and measurement would have been feasible.

This would have eliminated the need for the external capacitance network; but, by this time, the need for geometric modeling of transformers had dwindled.

The fast pulse geometric modeling technique was, however, used for a totally different purpose by the High Voltage Laboratory during the 1960's and 1970's. This was the estimation of the lightning performance, as regards line "outages", of high voltage transmission lines operated by the electric utilities. That is, determining by the use of a scale model of a section of such a transmission line just how often one would expect the line to be knocked out of service by lightning strikes in a year's time.

A technique which was developed by J.G. Anderson and F.A. Fisher of the Laboratory utilized a geometric scale model of two spans of a transmission line, including a detailed model of one steel tower as used on the line. Pulse voltage measurements from the model, along with digital computer analyses, allowed for the estimation of the line's lightning performance..

Originally, 1/25 scale models were erected. Eventually, however, pulse generation and measurement techniques advanced to the point that 1/50 scale models were feasible. This meant that, to simulate a lightning surge with a one microsecond time to crest, a pulse having a rise time of 1/50 microsecond (or 20 "nanoseconds") would have to be used. Thus, the technique came to be known as "nanosecond modeling".

Pulse currents, representing lightning stroke currents, were injected into the model line and the resulting surge voltages appearing across the insulator strings at the tower were measured. This data, along with statistical data for actual lightning strokes, was fed into a specially-developed computer program that subjected the transmission line to several years worth of simulated lightning exposure. The result of this was a value for the number of expected line outages per year, per mile of line. If this was unsatisfactorily high, the utility could consider taking measures to improve the line performance. The most basic means of accomplishing this was to improve the grounding of the towers by investing in more extensive grounding networks.

Electromagnetic modeling of a transformer, courtesy of General Electric Company
Geometric model of a transmission line tower (Julius Hagenguth at left), Pittsfield G.E. News, Nov. 22, 1963

Chapter 13: Special Laboratory Projects

The High Voltage Laboratory was originally formed for the purpose of investigating high voltage phenomena which related to the design of large power transformers. As time went on, however, the Laboratory often became involved in projects which had little or no relation to the manufacture of such transformers.

Involvement in investigations of natural lightning, however, did relate to transformers in so far as it was desirable to know the characteristics of lightning-type surges which transformers would be subjected to while in service.

The Empire State Building

Without doubt, the most significant of such "special projects" which the Laboratory became involved with was an investigation of natural lightning striking the top of the Empire State Building in New York City.

In 1900, Sir Charles Boys of London invented a type of camera in which the film was moved at high speed past the lens. One application for such a device was to resolve the extremely rapid sequence of events making up a lightning stroke. However, it was not until 1934 that a Dr. Schonland, working in South Africa, had any degree of success in achieving this. In 1936, the High Voltage Laboratory designed their own version of a Boys Camera.

The Boys Camera was just one type of equipment used in a very famous series of lightning investigations at the Empire State Building. These were conducted by the High Voltage Laboratory, beginning in 1935. A tremendous amount of information was gathered from this work concerning the basic nature of lightning strokes. Most notably, it was learned that the visible portion of a lightning stroke is actually a "return" stroke which has been initiated by a "leader" travelling in the opposite direction.

The leader establishes, step-by-step, the ultimate path of the stroke between cloud and earth. The return stroke is the means by which a tremendous flow of electrical current neutralizes the high voltage static charges which gave rise to the stroke in the first place.

It was eventually learned that the return stroke travels from the earth up towards the cloud! This is exactly the opposite of the psychological impression created in the minds of most people when witnessing a lightning stroke to earth. However, it was also learned that, for extremely tall structures such as the Empire State Building, the leader starts from the top of the structure and travels upwards to the cloud. Thus, the return stroke is actually from the cloud down to earth.

It was also learned that most lightning strokes are multiple in nature. That is, the first stroke is followed, in rapid succession, by several more strokes with lower levels of electrical current flowing in the times between them. This accounts for the flickering impression created by many lightning strokes.

Two types of Boys Cameras were used for the Empire State investigation. These cameras were located in a room near the top of a building at 500 Fifth Avenue, at the corner of Fifth Avenue and 42nd Street. This gave (at the time) an unobstructed view of the top of the Empire State Building at the corner of Fifth Avenue and 34th Street. One type was a high speed camera in which the film, mounted on the inside of a cylinder, was rotated at several thousand revolutions per minute past the lens. The other type of camera operated at a much slower speed. It consisted of both a stationary lens and a lens which rotated at speeds of from 30 to 120 revolutions per minute.

In addition to these cameras, oscillographic equipment was installed at the top of the Empire State Building itself. Signals for the oscillographs were obtained from a Thyrite-type current shunt connected so as to be in the lightning current path for a stroke to the radio antenna at the top of the building. The non-linear nature of Thyrite allowed this shunt to produce usable signals for stroke currents in the range of 5000 to 10,000 amperes!

During the years from 1936 through 1938, 68 strokes were recorded to the top of the building. Nineteen of these produced both photographic and oscillographic records. In 1939, no strokes at all were recorded until mid-August! Such is the uncertainty of lightning investigations.

The oscillographic equipment was located at the "port hole" level near the top of the building. One type of device, known as a "Crater Lamp Oscillograph", was used to record the levels of the continuing current between individual strokes in a multiple lightning strike. Sometimes, this current was as low as twenty amperes. The first good records of this type were obtained in 1937.

In addition, a cathode ray tube oscilloscope was used to record the waveforms of the actual return stroke currents. The first such record (oscillogram) was obtained in 1938. This oscilloscope was an early form of the hot-cathode type of device still in common use.

Additional equipment included a. multiple-aperture camera (added in 1939) which had four lenses, each set at different apertures ("f-stops") so as to record four simultaneous exposures of a lightning strike. Also, a device known as a "Calculograph” was used to record the openings of the camera shutters, and an "Ediphone" type of dictating device was used to record verbal comments during a lightning storm.

Warnings of storms approaching from New Jersey, to the west, were provided by both the Public Service Electric and Gas Company of New Jersey and the Newark, New Jersey airport.

According to K.B. McEachron's 1940 book "Playing With Lightning":

"The engineer, once aroused by the storm warning, must hurridly leap into his clothes, find a taxicab, and hasten to the Empire State Building. The hour may well be, and often is, after midnight, which means that a night elevator man must be found to make the trip to the 102nd Floor. Then there are two flights of iron stairs to be covered after that. Once on location, it is only necessary to close the proper switches, wait for the oscillogtaphic apparatus to heat up, and give the devices a quick checking over.

Then the order of the night is: down the iron stairs, down in the elevator, and into a cab for the journey to 500 Fifth Avenue, where the same kind of elevator service must be called upon. The cameras are usually located fifty or sixty stories up, and a couple of minutes are required to place them in operation.

All this time the storm is on its way, or so the investigator hopes; for down in the street it is usually impossible to follow developments. In all too many instances the whole thing turns out to be a false alarm, and there is nothing to do but turn off the equipment, make necessary notes, and go home again. There may be. later calls on the same night, which must be answered with a similar headlong trip."

The engineer referred to above was John Anderson of the High Voltage Laboratory. The same J.G. Anderson would, during the late 1970’s and early 1980's, become the Manager of the same Laboratory!

Boys Camera record of multiple lightning stroke (Empire State Building), courtesy of General Electric Company

Switching Surge Field Tests

During the late 1960's, American Electric Power, known generally as "AEP", built the first 765-kv transmission system in this country. The High Voltage Laboratory, in conjunction with the G.E. Electric Utility Engineering Operation in Schenectady, NY, performed a series of switching surge tests on this system at a 765-kv switchyard in Piketon, Ohio.

The purpose of these tests was to record the magnitudes and waveshapes of transient voltages and currents resulting from switching operations performed with the system in various operating configurations. The usual instrumentation for field tests such as these consisted of oscilloscopes to make photographic records of high speed transients, plus a device known as a "Visicorder" which was an optical-magnetic oscillograph manufactured by the Honeywell Company. This was a multi-channel device using mirror-type galvanometers to respond to an: electrical signal and deflect a beam of light onto a strip of photosensitive paper. The paper was run past the galvanameter beams at a high rate of speed, and a permanent record of transients lasting for many cycles of the 60-Hertz power frequency was obtained.

Signals for the Visicorder were obtained by using spare current transformers in existing switchyard power system devices (transformers and circuit breakers), and existing potential transformers or coupling capacitor devices in the switchyard. These provided 60-Hertz current and voltage signals respectively. The instrumentation provided by the High Voltage Laboratory was housed in a rented van parked in the switchyard.

Switching operations involving the power system circuit breakers, both in the Piketon switchyard and at other locations, were monitored. It was not possible to monitor operations involving the huge 765-kv disconnect switches in the yard because of the tremendous amount of electrical "noise" created by the fierce arcs which formed upon closing or opening these switches. These were arcs caused, primarily, by the capacitive "charging" current of the long transmission lines running from the switchyard.

This 765-kv switchyard was located on a hill overlooking a 345-kv switchyard in. the valley below. The two yards were interconnected via a bank of 765/345-kv Pittsfield-built G.E. auto-transformers. These were single-phase units and the bank was rated at 1500-Kva. At the time, this was the largest auto-transformer bank in operation in the world. Hence, there was concern about the severity of the switching transients which this bank would be subjected to.

These switchyards were actually operated by a subsidiary of AEP known as the Ohio Valley Electric Company, or "OVEC". The primary function of the 345-kv switchyard was to supply power to an Atomic Energy Commission uranium enrichment plant which was located next to it. Every so often, an overhead door would open at one end of this mammoth plant, and a locomotive would push a strange-looking railroad car (loaded with rods for use in nuclear, reactors) to a point just outside of the plant fence. Later, a commercial railroad locomotive, would arrive and take the car away. Other than that, there was never any Sign of activity at the plant! However, the author did have a chance to ride in the plant ambulance to the Portsmouth, Ohio hospital after dislocating a knee from slipping on a board in the mud outside of the G.E. instrumentation van!

Vacuum Switch Transients

During the early 1970's, vacuum-type switches began to replace oil circuit breakers for current interruption in high voltage circuits. One such application involved the switching of the high voltage primary of transformers used to supply power to steel-making arc furnaces. The arc' furnace consists of three huge carbon electrodes (for three-phase operation) operating at a few hundred volts and many thousands of amperes. Thus, it acts like a huge arc welder, but with the purpose of melting a large mass of scrap metal, rather than fusing metal parts together.

Some winding failures which occurred in Pittsfield-built arc furnace transformers seemed to be related to some form of high voltage transient activity. The vacuum switches being used were suspected and, indeed, did turn out to be the cause. They were producing severe transients during closing and opening operations, and these transients were slowly destroying the insulation of the transformer primary windings. The operation of an arc furnace requires a large number of such switching operations daily as a normal routine. Ultimately, the solution to the problem was the use of a double switch which inserted a resistance in series with the line before closing or tripping. This "pre-insertion resistance" served to damp out the severe transients.

However, in order to prove that the vacuum switch transients were to blame, and to determine the magnitude and character of these transients, the High Voltage Laboratory was contracted to perform field measurements at several arc furnace installations. Again, oscilloscopes and the Visicorder served as the major pieces of instrumentation. The voltage measurements were made by using either specially-designed capacitive dividers or with the use of bushing "cap tap" devices.

The author was personally involved in such field measurements at the Pontiac plant of General Motors in Pontiac, Michigan; at the Ford Motor Company plant in Flat Rock, Michigan; at a U.S. Steel plant in Baytown, Texas; at a John Deere tractor plant in Moline, Illinois; and at the new plant of a company called Cosigua, located outside of Rio de Janeiro, Brazil!

Also the Arizona Public Service electric utility contracted for such tests at their Cholla Generating Station near Holbrook, Arizona (on old Route 66). No arc furnace was involved, but they were using vacuum switches to switch a shunt reactor on their system at that location. They became worried because of all the publicity in the electric power industry about vacuum switch transients. No severe transients were recorded however.

Another contracted series of tests which yielded no evidence of severe vacuum switch transients was at a Stauffer Chemical Company plant near Tarpon Springs, Florida. They used a variation of an arc furnace, known as a "submerged arc" furnace, to smelt phosphorous for use in fertilizer and other products. The workers at that plant were required to wash their hands before meals, and to have company-sponsored dental check-ups regularly, because phosphorous residue was capable of eating away fillings in teeth!

Steel-making arc furnaces, on the other hand, do not pose that sort of danger. However, they are very impressive as regards the amount of noise produced during their operation, as well as the amount of smoke and flames in evidence during the melting process. They command a great deal of respect from those working near them, and minor burns are quite commonplace! Probably the most impressive sight is the tipping of the entire monstrous furnace rigging when it is time to pour the melted contents of the furnace into a crane-suspended ladle.

Lightning Protection at Disneyworld

When Walt E. Disney Enterprises ("WED") was planning the new Disneyworld theme park near Orlando; Florida in the late 1960's, they were wise enough to be concerned about lightning protection there. Primarily, it was the safety of passengers on aerial rides in the event of a rapidly developing electrical storm which was of concern. However, protection of elaborate computer-driven animation displays and other electronic equipment was also a consideration. Thus, the High Voltage Laboratory was contracted to perform a lightning protection study for Disneyworld.

WED did not have to worry too much about lightning protection at the existing Disneyland theme park in Anaheim, California because that region has the lowest level of lightning activity in the United States; Florida, on the other hand, has the highest! Thus, it was to their credit that they recognized the potential problem beforehand.

This lightning protection contract included guidance in the placement of lightning rods and grounding conductors for the various structures at Disneyworld. It also involved specifications for placement of lightning arrester types of devices to protect sensitive electronic equipment from high voltage lightning surges. The preparation involved in producing these guidelines and specifications meant visitations to Disneyland in order to study the particular types of equipment and structures which would have to be protected in Florida. This required riding every attraction at Disneyland so as to achieve a clear understanding of the situations which passengers would be placed in. This was a tough job, but someone had to do it!

Lightning Protection Studies for NASA

During the 1960's, the High Voltage Laboratory was contracted by the National Aeronautic and Space Administration (NASA) to perform a series of lightning protection studies on their system of satellite tracking stations which served to track all NASA unmanned satellites then in existence.

One such station which was investigated was located in Fort Myers, Florida. This station was plagued by lightning related problems simply because of the fact that Florida has such a high incidence rate for lightning. This contract involved the specification of additional grounding and bonding of cable shields and conduits to improve the flow of lightning current into the ground, so as to minimize the danger to personnel operating electronic equipment during a storm.

A common, problem with lightning protection for these types of installations (in general) is the common practice of intentionally grounding only one end of the protective shield around instrumentation cables. This is done in order to prevent spurious signals ("noise") resulting from ground loop pick-up if both ends of such shields are grounded. For these NASA installations, this situation was dealt with by specifying lightning arrester types of devices to be connected between the open ends of cable shields and ground. These would conduct only under high voltage surge conditions so as to provide a path for such surges to ground.

A second NASA station, located at Rosman, North Carolina, had severe lightning surge problems due to the fact that it was located on top of a mountain in the western part of the state which was composed to a large extent of mica, a non-conductor of electricity-This fact prevented lightning currents from finding an easy path to ground. Thus, such currents were forced to flow through metallic paths in the station facility. The situation had become so bad that the operators had. developed the habit of simply standing in the center of the control room during a lightning storm and watching. the sparks jump between the equipment cabinets!

However, the application of the same techniques which had been used at Fort Myers, Florida improved the situation so dramatically that, following installation of the specified improvements, the operators were able to safely work through storms for the first time since the opening of the station.

Nuclear Electromagnetic Pulse Studies

Also, during the 1960's, the High Voltage Laboratory became involved in protection work which was an interesting spin-off from lightning protection. It had been learned that the detonation of an atomic bomb produces extremely intense bursts of electromagnetic energy. These can damage electronic equipment which is located far from the point of detonation of the bomb, much farther than the more dramatic blast effects can be felt. These bursts of energy came to be known as "NEMP" which stands for nuclear electromagnetic pulse.

The High Voltage Laboratory was contracted, by the U.S. Government, to conduct studies as to how NEMP propagates in electrical and electronic systems, and how to control its damaging effects. Such protection techniques are actually very similar to those used against the damaging effects of high voltage surges caused by lightning; namely, improvements in shielding, grounding, and bonding, and the application of lightning arrester type devices. Thus, the Laboratory was a logical institution to approach for the undertaking of such a task.

One of the most interesting of these contracts involved the protection (from NEMP) of the extensive communications system which exists for the sole purpose of keeping track of the whereabouts of the President of the United States, at all times. While such facilities are located around the world, those in the immediate vicinity of Washington, D.C. were the primary subjects of this contract effort.

The above are just a few of the many, special projects which personnel associated with the High Voltage Laboratory were involved with over the years. The Empire State Building study has been documented in the literature; the more recent examples given are those in which the author had some personal involvement.

Chapter 14: Transformer Testing

"The visitor is impressed from the moment he steps into the building and if he isn't careful is likely to find himself staring open-mouthed at some new wonder. The very atmosphere in the test seems unreal. There is the all-pervading hum of the motor-generator sets in the adjoining power room, now and then punctuated by the whirring growl of the cranes. Then there are the pits of varying depth; one so deep that a transformer twenty feet high can be set in for test and its top be nearly flush with the floor level."

The quotation above, from the March 20, 1931 issue of the Pittsfield G.E. News, is describing the scene in the Building 12 test operation. Transformer testing began there in 1917; prior to that, transformers were tested in the southern part of the Building 1-2-3 complex. Before the turn of the century, Stanley (SKC) transformers were tested in the plants on Clapp Avenue and Renne Avenue in Pittsfield.

In the early years of the Stanley Company, however, the testing of newly-built transformers consisted mainly of the "smoke and bubbles" approach. That is, when power was first applied to a transformer, the absence of visible smoke or of bubbles in the transformer oil meant that the transformer was fine!

Basic tests might be performed to determine that the transformer windings had the correct "polarity" relative to each other, that the "turns ratio" between windings was correct, and that the electrical resistances of the windings were as expected. Polarity tests assured that the windings were wound in the proper directions and that their terminals were properly marked. Ratio tests assured that the number of turns in each winding was correct and that internal connections were properly made. Resistance tests assured that the correct size of wire had been used and that internal joints were soundly made.

None of these tests required tremendous amounts of electrical power to perform. Polarity tests can be made with a simple battery, ratio tests with a light-duty alternating current supply (usually 60-Hertz), and the measurement of winding resistance can be performed with the aid of a small capacity D.C. generator. All of the above techniques were still in use for these tests until the closing of the Pittsfield transformer operation in 1987!

As the design of transformers became more sophisticated, however, standard tests were implemented in order to determine the magnitudes of the various losses in the transformers, how hot they would become while in service, and how secure was their ability to withstand high voltage surges (such as from lightning). All of these tests did require significant amounts of electrical power to perform. Furthermore, the type of power required varied in voltage level, current capability, and frequency, depending on the type of test being carried out.

Eventually, the total complement of routine transformer tests became those as described in detail below.

Ratio

The basic function of a transformer is to change one alternating-current voltage level into another, either higher or lower. This is accomplished by means of the ratio of turns in the two windings of the transformer. Thus, measurement of this "turns ratio" is a basic means of assuring that the correct number of copper wire turns were actually wound into each winding.

Traditionally, measurement of turns ratio involved applying a much lower than normal voltage to one winding and using a pair of voltmeters to measure this voltage, as well as the voltage induced into the other winding. The ratio of these two voltage readings should equal the intended turns ratio if the transformer was correctly wound.

The readings of the two voltmeters were recorded and then the two meters were reversed and the readings were recorded again. This procedure helped to detect any errors which might exist in the meters themselves.

Eventually, specialized equipment was developed which operated on a "bridge" principle; that is, one voltmeter, was used which functioned as a null detector. It would read zero when signals derived from the two winding voltages matched. The turns ratio was then read directly from a set of dials used to balance the bridge.

Polarity

The direction (clockwise or counter-clockwise) in which each of the windings of the transformer is wound around the iron core is specified in the design of the transformer. It is important that the proper winding direction be used, particularly if the transformer is apt to be "paralleled" with another similar unit in order to increase power handling capability. If transformers with opposite winding polarities are placed in parallel, a massive short circuit will result since the two output voltages will be in opposition, or "out-ofphase".

Measurement of winding polarity consists of applying a D.C. voltage of low Magnitude to one of the windings, interrupting this voltage supply, and observing the direction of the induced voltage "kick" on a voltmeter connected to the other winding. This inductive “!kick” is produced by the rapidly collapsing magnetic field in the iron core when the applied voltage is interrupted suddenly.

A 1904 drawing discovered in the files at the plant in Pittsfield describes-the construction of what is called a "watch-case polarity indicator". This was a device the size and shape of an old-fashioned pocket watch which served as the indicating device for polarity tests.

Phase displacement

In three-phase transformers, the concept of polarity becomes more complicated because the winding directions affect the phase angles between the voltages in the windings of the individual phases. Again, these phase angles are specified in the transformer design and must be checked in Test.

Originally, a procedure was developed in which one primary winding terminal was temporarily connected to one secondary winding terminal, a lower than normal voltage was applied to the transformer, and the voltages appearing between the various free winding terminals were measured. Charts were then consulted to see whether these voltage measurements indicated the proper phase displacement or not.

Eventually, a sophisticated bridge-type of device was designed and manufactured by the Datascan Corporation which combined the functions of ratio measurement, polarity determination, and phase displacement determination. This type of device was used in the Test Department of Building 100 until the Pittsfield plant closing in 1987.

Resistance

A simple ohmmeter measures resistance by applying a known voltage and then measuring the current through the resistance. By Ohm's Law, the resistance is the ratio of the voltage to the current. A variation of this method is to drive a known current through the resistance, measure the resulting voltage drop across it, and again apply Ohm's Law to find the resistance value.

The greatest accuracy in resistance measurement is obtained, however, by the use of some form of bridge device in which the unknown resistance is compared to a precisely known standard resistance. When these two are exactly equal, as indicated by a zero reading on a null-detecting meter, the value of the unknown resistance is read from the dials used to select the value for the standard resistance.

It is important to accurately determine the resistances of the windings in a transformer in order to be sure that the proper size of wire was used, and that there are no defective joints between individual sections of wire which could lead to overheating and the eventual failure of the transformer in service.

The simplest form of resistance bridge is known as a Wheatstone Bridge, named for its nineteenth century inventor. However, this type of bridge suffers from inaccuracies when very low values of resistance are measured. This is due to the fact that it is very difficult to separate the resistance of the leads used to connect the bridge to the unknown resistance being measured from the total resistance value indicated by the bridge.

A variation of .the simple Wheatstone Bridge is the Kelvin Bridge (named after Lord Kelvin) in which the leads used to drive current through the unknown resistance are separate from the leads used to read the voltage drop across the resistance. This largely eliminates the error introduced by the resistance of the measurement leads themselves. Since it is usual for the resistances of windings in large transformers to be very low, elimination of this error is important.

The Kelvin Bridge concept was used for many years in the measurement of transformer winding resistances at the Pittsfield plant. However, as transformers became larger and larger, their winding resistances likewise became lower and lower in value. Eventually, an additional source of error which is present in the circuit of the Kelvin Bridge became more and more of a problem. This has to do with the voltage drop which appears across one of the current leads of the bridge. Because of the location of this lead resistance in the schematic diagram for such a bridge, it came to be known as the "yoke" resistance. The type of resistance bridge which was in use by the time that Building 100 went into operation (1968) was known as an "LRY Bridge". This stood for "low resistance yokeless" and the name emphasized the fact that its operation eliminated the source of error::which was related to the yoke resistance in the Kelvin Bridge circuit. The LRY Bridge was powered by an Amplidyne generator which could supply up to four hundred amperes of current to drive through the winding resistance to be measured. This assured that a large enough voltage drop would be developed across very low resistance windings to allow for an accurate measurement. The LRY Bridge was developed by the Pittsfield laboratory operation.

Core Loss and Exciting Current

When a transformer is energized at its rated voltage, but is feeding no load, there is still a loss involved due to the less than perfect distribution of the magnetic flux in the iron core, and due to the fact that energy is required to magnetize and de-magnetize the core every half-cycle of the applied alternating current. This loss (in kilowatts for a large transformer) is measured by applying rated voltage to one winding with the other winding, or windings, on open circuit. Usually, a low voltage winding is excited, simply because that is more convenient.

In order to obtain an accurate measurement of the core loss, not only must the voltage be held very accurately, but the frequency of that voltage must be the rated frequency of the transformer. In the early years of transformer testing, some means had to be provided to generate frequencies other than 60-Hertz, since the latter frequency had not yet become the absolute standard in this country (see Chapter 15). Eventually, however, frequency control was most often not necessary since virtually all transformers were designed for use on 60-Hertz power systems.

However, in order to provide very, accurate control of voltage, an Amplidyne system was developed which was configured as shown in the diagram below. Prior to this, voltage control was rather crude; it depended on the manual setting of a generator field rheostat by the test berth operator.

Blalock - page 216.jpg

An additional complication arises in regards to the accurate measurement of core loss; again, this has to do with holding the correct voltage level for the test. Since the transformer core is operated very close to the point of magnetic "saturation", the current which flows to excite the core is non-linear. That is, it contains a very strong third harmonic component plus lesser components of higher odd multiples of the basic frequency. Since the test voltage is being supplied by an individual generator, rather than by a large "stiff" power system, this causes the applied voltage waveform to be somewhat distorted as well. Thus, the voltage applied to the transformer under test will not be a pure sine wave as it should be.

The measured core loss value is very sensitive to the peak magnetic flux density in the core. This, in turn, is very much a function of the applied voltage. Distortion of the voltage waveform will cause a corresponding change in the flux density. This creates large errors in the measured core loss. Guglielmo Camilli, the renowned Pittsfield G.E. theoretician, investigated this situation during the early decades of this century. He determined that it was possible to obtain the correct measurement of core loss if the proper value of average voltage was applied to the transformer, rather than the conventional "RMS" value, regardless of the distortion present in the applied voltage waveform.

This concept led to the development of the "flux voltmeter". This was a voltmeter, which was connected to the output of a full-wave rectifier. Thus, it read the average value of the (rectified) A.C. waveform. However, it was calibrated in such a way that it read the RMS value corresponding to the average voltage. In other words, if a pure sine wave was applied to it, it would read the RMS value of the sine wave just as a conventional RMS voltmeter would.

If the rated voltage of the transformer winding, which was being excited for the core loss test, was applied to that winding according to the flux voltmeter, then the correct core loss would be measured (via a wattmeter) regardless of whether the applied voltage waveform was distorted or not.

Measurement of the distorted current waveform was also of concern. This current, with the transformer on open-circuit, is called the exciting current. It consists of two components: one is the magnetizing current ("mag I") which flows in order to magnetize the transformer core, and the other is a component which flows due to the presence of the core loss. The vector sum of these two components is the total exciting current.

Camilli also developed a theoretically-complex device known as a "crest ammeter" which allowed for the correct measurement of exciting current in spite of the highly distorted nature of the current waveform. However, as time went on and larger test generators were made available, the current waveform distortion became less and a simpler technique for exciting current measurement was resorted to. This involved measuring the current twice: once with the rated transformer voltage held by means of the flux voltmeter, and again with the voltage held by means of a conventional RMS voltmeter. The reported exciting current was the average of these two values. If the applied voltage actually was a sine wave, then the generator excitation would not have to be changed to obtain the two current readings since the two voltmeters would read the same simultaneously. Usually, however, this was not the case.

Last, but not least, measurement of the actual core loss was complicated by the fact that a large transformer, on open-circuit, appears as a very low power factor load (around 10%, or 0.1, power factor). Thus, the phase angle between the applied voltage and the exciting current is in the eighty to near ninety degree range. The actual core loss value is proportional to the cosine of this angle.

Due to the behavior of the cosine for angles in this range, a very small error in the phase angle measurement leads to a much larger error in the core loss value as indicated by a wattmeter. Much development effort was expended in the design of wattmeters which would be accurate at low power factors such as these. No doubt, this effort is still continuing today!

Thus, as with the measurement of transformer winding resistances, the accurate measurement of losses in large power transformers involves complexities not immediately apparent to the uninitiated.

Impedance and Load Loss

The impedance of a transformer is determined by applying sufficient voltage to one winding, with the other winding shorted, to circulate ;rated current in the windings. Normally, the high voltage winding is excited, and the low voltage winding shorted, because less current needs to be supplied by the power system.

Rated current is held by means of an ammeter, and the voltage required to circulate this current through the windings is recorded. A conventional RMS voltmeter is used (rather than a flux voltmeter) because, typically, this voltage is only ten to twenty percent of the rated voltage of the winding being excited. Thus, the core is not operating anywhere near saturation, and distortion of the voltage (or current) waveform is not a consideration.

This voltage, expressed as a percentage of the rated voltage of the winding, is the only actual test value which is stamped on the metal nameplate which is attached to each transformer. This has to do with the importance of this value to power system engineers in regards to studies of power system loading, short circuit behavior, and system stability.

At the same time, the load loss is measured with a wattmeter. This loss consists of two components: a “copper loss" resulting from the flow of current and the resistance of the windings, and a "stray and eddy" loss resulting from the less than perfect distribution of magnetic flux in (and around) the transformer core.

The power factor of a large transformer with one winding shorted is, typically, an order of magnitude lower than it is for the core loss test (open circuit). Thus, power factors as low as 0.01 (1.0%) must be dealt with! This makes the proper design of the wattmeter used to measure load loss an even more important consideration than for the core loss measurement.

In addition, the Mva requited from the power system to perform this 'type of short-circuit test is roughly ten to twenty percent of the actual rated Mva of the transformer being tested. As a result, for large power transformers, the Mva required cannot be supplied by the test generators alone. However, since the transformer appears to the power system as a nearly pure inductive load, the majority of this Mva can be supplied by using banks of capacitors.

As an example, consider the impedance and load loss test of a large "generator step-up" type of transformer rated at 600-Mva, with a 138-kvhigh voltage winding and a 34.5-kv low voltage winding. Assume this to be a three-phase transformer.

For simplicity, assume that the actual tested value of "impedance voltage" turns out to be ten per cent. This is often referred to as "IZ" volts, being the product of the rated current (I) times the transformer impedance (Z) in ohms. It is of course, the voltage required to circulate rated current through the impedance of the shorted transformer.

Thus, 10% of 138-kv, or 13.8-kv, would be required to circulate rated current in the high voltage winding of the transformer. It so happens that this was the rated voltage output of the largest 60-Hertz test generators supplying power for testing in Building 100 of the Pittsfield plant. These generators were rated at 12-Mva each. However, for IZ = 10%, one-tenth of the rated Mva of the transformer would be required in order to perform this test. This would be 60-Mva. Thus, the_ majority of the test Mva would need to be supplied by capacitors if only one test generator was used.

The current required for the test is determined from the rated Mva and voltage of the transformer: 1000(600-Mva)/(√3 x 138-kv) = 2510 amps

Therefore, the power system needs to supply a current of 2510 amps at a voltage of 13.8-kv (60=Mva). The power system set-up would be as follows:

Blalock - page 220.jpg

Since the capacitor bank supplies 2260 amps out of the 2510 amps required, the test generator need supply only 250 amps (the rated full-load current for a 12-Mva generator would be 502 amps).

The berth transformer was provided in order to have voltage ratio adjustment between the power system and the test berth itself. In this case, since 13.8-kv is required, the berth transformer taps would be set for a one-to-one voltage ratio.

The above example is calculated on a "zero power factor" basis. As mentioned above, this would very nearly be the actual situation. If the transformer load loss tested to be 600-kilowatts (which would be a reasonable value for a transformer of this size and type), the power factor during the test would be only (0.6-Megawatts/60-Mva), or 0.01.

The current circulating in the short circuit on the low voltage winding would be equal to (138/34.5) times 2510 amps, or slightly in excess of 10,000 amps! In order to adequately handle currents of this magnitude, a special "water-cooled short" was used. This consisted of three-inch diameter copper pipe with one-inch thick walls, through which city tap water was circulated during the test to carry away built-up heat. For tests having lower magnitudes of current in the short, heavy copper bus bars or rods were used for the shorted connection on the low voltage winding.

Heat Runs

In order to determine how hot the windings and the oil of a transformer will become while the transformer is in service, a "thermal rise" test is conducted. This is commonly referred to as a "heat run".

During the early years of transformer testing, when transformers were still relatively small, ingenious methods were devised which allowed rated current to be circulated through the transformer windings while rated voltage was applied. This excited both the core loss and the load, loss simultaneously, as would be the case when the transformer was in service and carrying a full rated load. Thus, with this type of excitation, the transformer could be allowed to come to a state of thermal equilibrium and the winding and oil temperatures determined.

However, as transformers became much larger over the years, this method of conducting a heat run became impractical. Thus, a "compromise" heat run procedure was recognized by the transformer industry. The test set-up for this is exactly the same as for the measurement of load loss. The high voltage winding is energized at a reduced voltage with the low voltage winding short-circuited.

Under these conditions, with rated current circulating through the windings, only the load loss will be represented, and not the core loss. Thus, in order to determine the ultimate temperature to which the transformer oil would rise under full load conditions, a "total loss" run was made. The tested core loss and load loss values were added together, and this value was held on the test berth wattmeter for a length of time sufficient to cause the oil temperature to rise to a final (stable) value. For a large transformer, this might take as much as twenty-four hours.

Once this ultimate oil rise value was determined, rated current would then be circulated through the windings in order to determine the ultimate winding copper temperatures. The oil temperatures were measured by means of thermocouples inserted through holes in the top of the transformer tank.

The winding temperatures, however, could not be directly measured with thermocouples as could the oil temperatures because of the high voltages and currents in the windings. An indirect means, using the well-known relationship between the temperature of copper and its electrical resistance, was used. Before the heat run (and, in fact, before any tests requiring the application of "serious" power), the winding resistances were measured while the copper was known to be at the same temperature as the oil. Again, since the oil temperature could be easily measured with a thermocouple, the winding resistance at a known temperature was obtained.

Then, as a part of the heat run procedure, the power would be removed from the hot transformer and the winding resistances quickly measured. As soon as the circuit breaker connecting the test berth to the generator supplying the power was tripped, the power connections to the transformer would be removed and leads from a resistance bridge (such as the LRY Bridge) would quickly be connected. The bridge readout was in the form of a slow-moving chart. Thus, a "cooling curve" of winding resistance could be taken over a period of about ten minutes. Then, a mathematical process was used to extrapolate this data back to obtain a resistance value at the instant that power was removed. This could then be translated into a winding temperature at that time. This process was repeated for each of the windings in the transformer.

W.T.I. Runs

Winding Temperature Indicators ("WTI's") would have been better named as Winding Temperature Simulators. . Their function was to indicate, in a very indirect manner, the hottest spot in the transformer windings during actual operation.

Since it was impossible to actually measure the temperature within a winding while the transformer was energized, a simulation method was resorted to. The temperature within the windings is a function of the temperature of the oil and the amount of current flowing in the winding.

A device called a "well" was threaded into the wall of the transformer tank, near the top. Thus, it was exposed to the hottest oil in the transformer. Then, a current, derived from a special current transformer called a "WTI-CT", was passed through the metal tube forming the well. Thus, the temperature of the well was a function of both the top oil temperature and the current in the winding.

The WTI-CT feeding current to a particular well was connected in the line lead to a particular winding in the transformer. Normally, one phase of each set of windings would be equipped with a WTI arrangement.

A device was inserted into the well from outside of the tank to monitor the temperature in the well. Sometimes this was a simple thermometer-type element which connected to a dial indicating device mounted on the transformer tank. The dial read the temperature seen by the well element. This dial device was equipped with electrical contacts which could be used, if desired by the customer, to either ring an alarm or actually trip the transformer off the line if the temperature exceeded a certain level.

An alternative to the locally-mounted dial device was an electrical element which could send a signal, by means of thermocouple action, to a remotely-located indicating device.

The WTI devices were calibrated in Test to read the transformer design engineer's calculated winding "hot spot" temperature. That is, the expected hottest spot in each winding when the transformer was operating at full load. This calibration was performed by means of a test set-up exactly like that used for load loss and heat run tests; rated current was circulated through the windings with one winding shorted.

Hi-pot Tests

The high potential ("hi-pot") test was performed in order to test the integrity of the major transformer insulation structures; that is, the insulation between windings, and between windings and ground (the core or the tank).

A 60-Hertz voltage at a specified level would be applied to one winding at a time, with all other windings grounded. Usually, this voltage would be held for one minute. If all was well, with the insulation in the transformer, nothing would happen! If all was not well, a breakdown would occur which would trip off the supply of voltage. The problem would then have to be found and corrected. Sometimes, this meant untanking the core and coils and, possibly, actually tearing down the failed winding. This, of course, was a very costly and undesirable situation.

The voltage to run the hi-pot tests was obtained by means of special step-up test transformers located in the test berths themselves. These were capable of being moved from berth to berth by overhead crane as needed. Hi-pot transformers were available which were capable of supplying up to 100-kv, 350-kv, or 500-kv depending on the voltage level required for a particular hi-pot test.

The hi-pot transformers were energized either from a test generator or from a voltage regulator so that the voltage could be raised gradually to the required test level. If a generator was used, it was essential that the generator produce a very pure-sine-wave output waveform. Distorted (non-sinusoidal) generator outputs are usually "peaked" in nature due to the presence of odd harmonics of the basic frequency. Such a peaked waveform would subject the transformer insulation to more than the intended voltage twice each cycle.

In Building 100 Test, in Pittsfield,a particular generator (known as "Generator 120") was used for hi-pot tests because it was known to have a very pure sine-wave output. Ironically, this rather specially-wound generator dated from 1913, and had served for similar test functions in both the Building 1-2-3 complex and in Building 12 long before Building 100 was completed!

Normally, the actual test voltage was monitored by means of a special coil wound into the hi-pot transformer. This winding had a very accurately known ratio With respect to the high voltage output winding of the transformer. Thus, a voltmeter connected to this coil would read a precisely known percentage of the voltage being applied to the transformer winding under test. In the early years of testing, however, sphere gaps were used for voltage measurement during hi-pot tests, as described in Chapter 11.

Blalock - page 224.jpg

One complication which arose as regards supplying 60-Hertz power for hi-pot tests was the fact that the transformer being tested appeared to the power system as a huge capacitive load. Normally, such capacitive loads will cause a generator to "self-excite"; that is, the generator output voltage will rise uncontrollably. In order to prevent this, the system had to be "loaded" inductively by connecting air core reactors in parallel with the primary of the hi-pot transformer.

The transformer design engineer would supply a calculated value of "capacitive Kva" for the transformer being tested. This aided in determining how many reactors would be needed to offset the capacitance of the tested transformer, thus making the effective load on the generator inductive. Sometimes, sufficient air core reactors were not available for this purpose. In such cases, it was often possible to obtain the necessary inductive reactance by using a test transformer with a shorted secondary winding.

Induce Tests

The induce test, or more accurately the induced-voltage test, complemented the hi-pot test in that it tested the insulation within the transformer windings themselves; that is, the turn-to-turn insulation. The voltage was applied to the low voltage winding (for convenience) and transformer action induced a corresponding voltage into the high voltage winding.

There are two usual types of induce test. In one, a voltage equal to one and a half times the normal, winding voltages is applied for a period of one hour. In the other, a voltage equal to twice. (or, sometimes, as much as three times) the normal winding voltages is applied for a period of so many seconds. The actual time of application in seconds is a function of the frequency of excitation used. A total of 7200 cycles of alternating voltage must be applied.

A transformer cannot be excited at a voltage much greater than about 110% to 115% of its normal voltage rating, at the frequency for which it was designed.

To exceed this level would cause the core to be driven so far into saturation that the exciting current would become excessive; essentially, the transformer would no longer be functioning as a transformer.

However, Faraday's Law of Electromagnetic Induction states that transformer action (induced voltage) is a function of the total rate of change of the magnetic flux in the core. This total rate of change, in turn, is a function of both the peak magnitude of the flux in the core and the frequency of excitation. Thus, if the frequency is increased above the design frequency of the transformer, a higher induced voltage can be sustained at lower peak flux magnitudes so that the core is not driven into saturation.

Thus, induced-voltage tests were performed at frequencies much higher than the rated frequency of the transformer being tested (normally 60-Hertz), In the early years of testing at the Pittsfield plant, such tests were performed at a frequency of 420-Hertz. This is exactly seven times 60-Hertz and, so, was easily obtained by means of "frequency-changer" types of motor-generator sets. As transformers became larger over the years, however, this high of a frequency began to cause problems due to the large capacitances of huge windings. Accordingly, by the time Building 100 was designed in the 1960's, it had been decided to lower the frequency for induce tests to 240-Hertz. Two new motor-generator sets were purchased for this purpose.

The industry standards for the induced-voltage test dictate that the voltage be applied (for the short-term type of test) for a total of 7200 cycles. At a frequency of 240-Hertz, this means that the voltage is held for exactly thirty seconds. At the old frequency of 420-Hertz, however, the voltage was to be held for a. little over seventeen seconds (in practice, eighteen seconds was used) in order to satisfy the required 7200 cycles criterion.

Thus, if a twice normal induce test is required on a transformer with a high voltage rating of 230-kv, and a test frequency of 240-Hertz is used, then a 460-kV voltage would be induced into the high voltage winding and would be held for thirty seconds. If the low voltage winding being excited was rated at 34.5-kv, then a voltage of 69-kv would be applied to it for the test.

As for hi-pot tests, in the early days of testing, sphere gaps were used to measure (or to check) the voltage level being applied during induce tests. Using sphere gaps as the voltage measurement standard, the voltage applied to the low voltage winding could be used to monitor the test level by calibrating the berth voltmeter against the sphere gap.

Eventually, however, a method was developed whereby a special connection which was available on the porcelain high voltage bushings was used to monitor the test voltage. This connection is called a capacitance tap, or "cap tap", and is used to check the condition of the bushing from time to time while it is in service on the transformer. The use of the cap tap allows the bushing to function as a capacitive voltage divider, providing an accurately known percentage of the test voltage to be fed to a voltmeter.

A significant facet of induce testing, developed in the late 1950's, came to be the monitoring of voltage spikes caused by partial discharges ("corona") within the transformer. Such discharges, or partial breakdowns, were caused by some sort of deficiency in the insulation structure of the transformer. If such activity was detected, the exact source would have to be determined and corrected. Sometimes this involved untanking the core and coils and, worse, tearing down a winding. If left uncorrected, such insulation defects would seriously shorten the life of the transformer in service.

The same cap tap connection from the high voltage bushing was used to detect these voltage spikes by feeding the signal from the cap tap through a special resonating circuit. This allowed for the monitoring of these "spits" on a special Radio Noise Meter, at a frequency of (or near to) one Megahertz. The term "radio noise" can be understood by considering the effect on an automobile AM radio when passing beneath a high voltage transmission line, particularly during damp weather. The intense static heard on the radio is caused by corona on the transmission line conductors or insulators.

This monitoring procedure was called RIV for Radio Influence Voltage. It consumed a great deal of time and effort because it was extremely sensitive, of necessity, and so was subject to interference by any sort of sparking activity external to the transformer itself. This might be due to sparking brushes on electric motors in the vicinity, or it could be caused by sparking which was caused by the running of the induce test itself.

The application of very high voltages created intense electric fields in the vicinity of the transformer under test. Under the influence of such fields, any two metallic objects close together (but not touching) could be made to spark.

Any such "external" sources of RIV would have to be found and eliminated before the test could proceed. Sometimes this was a very difficult, and exasperating, form of endeavor to say the least. Such problems were, invariably, most severe when a customer's inspector was waiting impatiently for the test to be run so that he could catch a plane for home!

Special precautions had to be taken to prevent these intense electric fields from causing sparking at the transformer bushings themselves. To ease the "gradient" of the field, large polished metal spheres were installed on the bushings just for the purpose of running the induced voltage test. This was due to the fact that voltages far in excess of the normal rated transformer voltages were applied. In the early years of induce testing, it had been discovered that large truck tire inner tubes would perform this function at a much lower cost than was required for polished metal spheres. Because of the carbon content, the inner tubes were conductive enough. Vendors of these inner tubes had a difficult time understanding why a corresponding number of truck tires was not required!

As mentioned above, power for induce tests was obtained from frequency-changer motor-generator sets. Also, as mentioned under the topic of hi-pot tests, generators do not like to see leading power factor, or capacitive, loads. Even though, in an induce test, the transformer windings themselves are inductive, the high frequency used causes the inherent stray capacitances within the transformer to have a more pronounced effect than at 60-Hertz.

As a result, the net load as seen by the generator is capacitive. Thus, air core reactors had to be used to load the power system inductively, just as for hi-pot tests. Again, the transformer design engineer supplied a value of capacitive Kva to enable test personnel to determine how many reactors would be needed for this purpose for each induce test set-up. For induce tests, a set of permanently installed outdoor reactors were in place for use by Building 100 Test. These reactors were switchable so that various values of reactive Kva could be easily selected.

Impulse Tests

Transformer impulse testing is a means of assuring the customer that the transformer windings will withstand the very high voltage surges which the transformer will be subjected to in service, due to lightning strikes in the vicinity.

Short duration surge voltages, of a magnitude as specified by industry standards, are applied to the transformer terminals by an impulse generator, and are recorded using oscillographic techniques. These surge voltages are representative of those which are created by natural lightning strikes to, or near, the transmission line to which the transformer will be connected in service.

The magnitude of the surges applied in Test is determined by the Basic Insulation Level ("BIL") of the transformer. This is an industry standard voltage level which is a function of the normal operating voltage of the transformer. The higher the rated voltage of a transformer winding, the higher is its BIL, and the higher is the magnitude of the impulse surge to which it will be subjected in Test.

The four basic types of transformer impulse tests are:

Full wave

This is a standardized waveform which represents an average lightning strike to a transmission line. It rises to a peak voltage value in 1.2 microseconds (millionths of a second), and then decays to one-half of this value in 50 microseconds. The peak Voltage value would equal the BIL of the transformer winding being impulsed, in kilovolts.

Chopped wave

If a lightning surge on a transmission line causes a line insulator to flashover, the surge will be terminated in time duration. This is simulated in the impulse test by "chopping" the full wave just after its peak voltage level by using a "rod gap". This is a pair of brass rods set apart at a distance which will allow a breakdown at the kilovolt level of the test.

Steep front

Years ago, a common electric utility practice was to mount rod gaps on the bushings of transformers in service. This was to prevent damage to the porcelain bushing if a lightning-induced flashover of the bushing should occur. The steep front test is a leftover from that (now outdated) practice. For the test, a rod gap is mounted on the bushing itself, and the applied full wave is again chopped. In this case, however, the rod gap flashover occurs before the full wave actually reaches crest. For this reason, this test is sometimes referred to as a frontof-wave test. The peak voltage level is even higher than either the full wave or chopped wave test, and this fact coupled with the extreme nature of the chop-off means that it is a much more severe test of the integrity of the transformer insulation. Thus, it is still required by some transformer customers as an even greater assurance of the quality of the insulation.

Switching surge

For very high voltage transmission systems, the surges caused by normal switching operations can be more severe than those caused by lightning! Field tests over the years have shown that these surges differ in waveform from lightning surges. They are much longer in duration, being measured in hundreds of microseconds rather than in tens of microseconds as for lightning surges. The same type of impulse generator and the same techniques for recording the surges are used, however, as for lightning impulse tests.

Miscellaneous tests

In addition to the major transformer tests outlined above, several minor types of tests were performed as required. These tests were generally conducted at low, or moderately low, voltage levels and required little or no test power. Some of these tests were required on all transformers built, and others were performed only at the request of the customer. Because of the highly varied nature of such tests, they will not be described here.

To read more, continue to Transformers at Pittsfield, part 3.